1/4


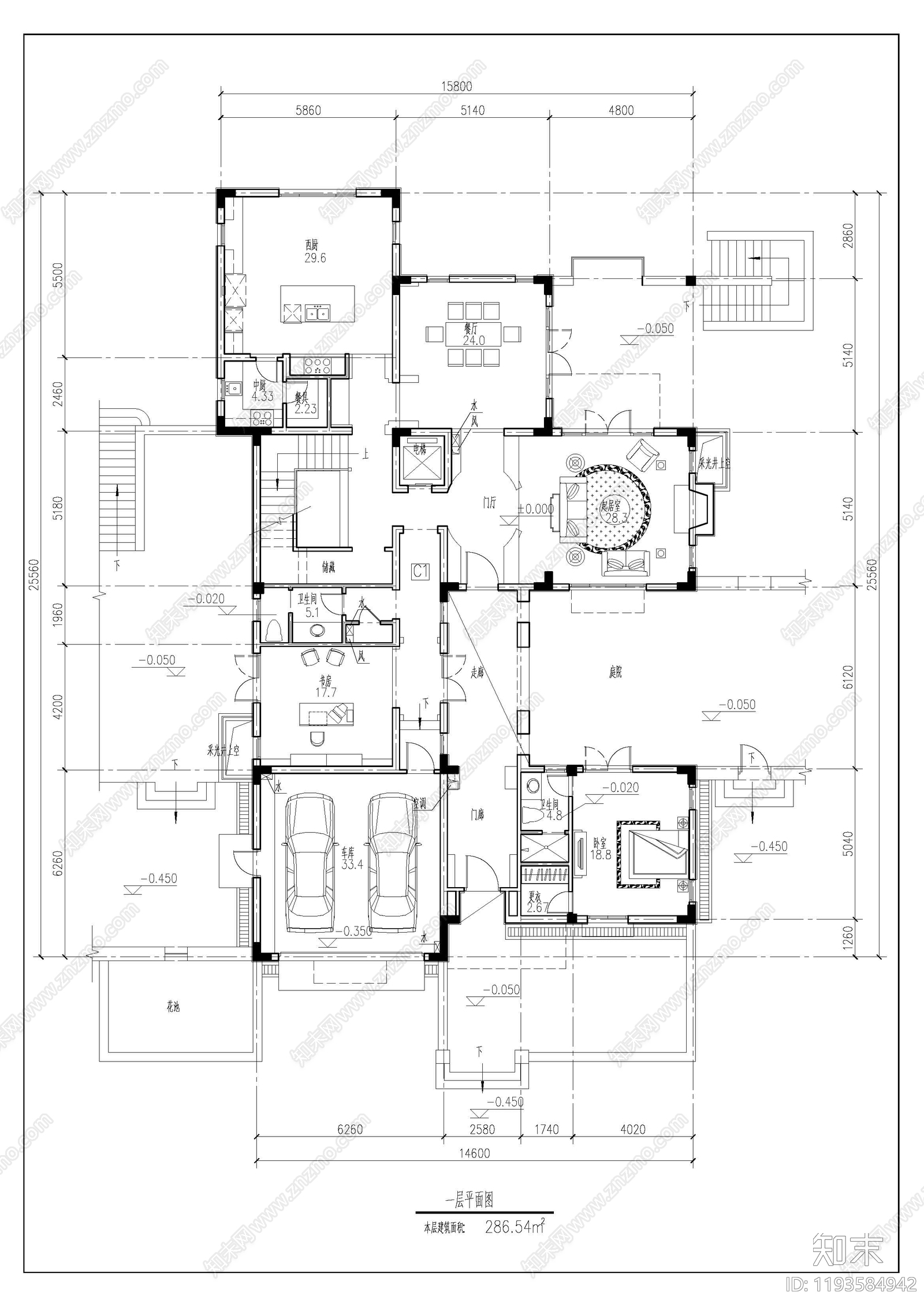
现代新中式别墅建筑CAD下载
ID: 1193584942
复制
上传作者
逆风狂飙(互)
逆风狂飙(互)上传时间2025-04-29
文件大小0.81M
设计风格:--
CAD版本:CAD2014
包含文件:CAD
授权独家
立即下载
收藏
分享
举报
相关推荐
综合
居住建筑
别墅建筑
住宅楼建筑
四合院
其他居住建筑
高层住宅
多层住宅
低层住宅
公寓建筑
联排住宅


逆风狂飙(互)上传时间2025-04-29
文件大小0.81M
设计风格:--
CAD版本:CAD2014
包含文件:CAD
授权独家