1/4


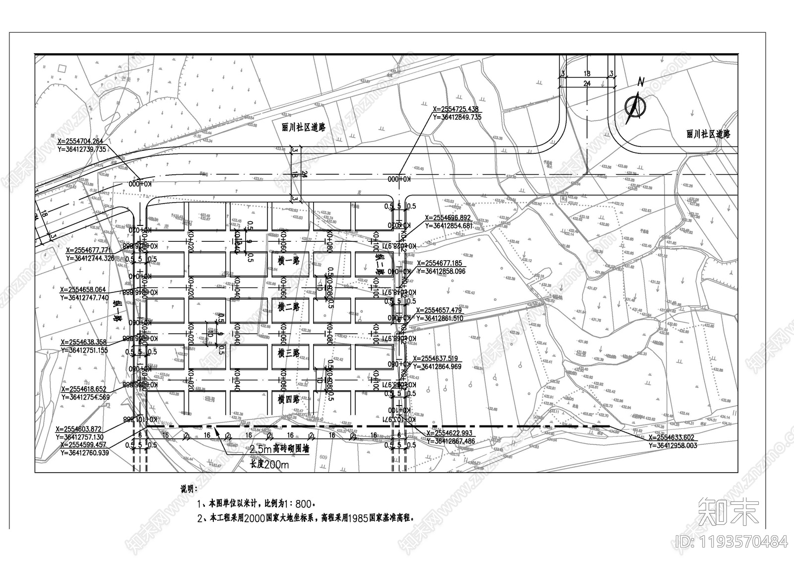
道路CAD下载
ID: 1193570484
复制
上传作者
接施工图-建模-效果图私(互粉)
接施工图-建模-效果图私(互粉)上传时间2025-04-28
文件大小3.59M
设计风格:--
CAD版本:CAD2007
包含文件:CAD
授权独家
立即下载
收藏
分享
举报
相关推荐
综合
景观小品
道路
亭子
廊架
景墙
综合景观小品
雨棚
围墙
挡土墙
入口


接施工图-建模-效果图私(互粉)上传时间2025-04-28
文件大小3.59M
设计风格:--
CAD版本:CAD2007
包含文件:CAD
授权独家