CAD频道
CAD图库
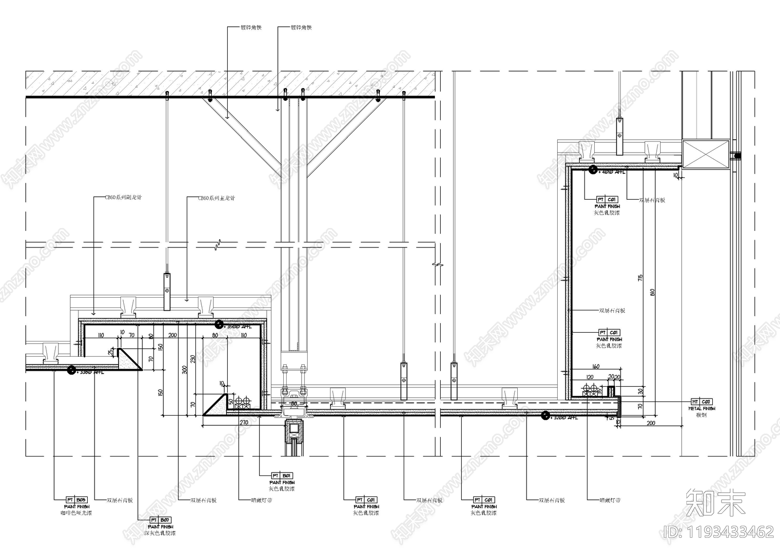
吊顶节点 隔断门天花节点图 施工图
1/
3
Previous
Next
吊顶节点CAD下载
ID: 1193433462
复制
上传作者
xin图
上传时间
2025-04-27
文件大小
1.89M
设计风格:
--
CAD版本:
CAD2004
包含文件:
CAD
授权
独家
立即下载
收藏
分享
举报
相关推荐
综合
吊顶节点
方通吊顶
格栅吊顶
扣板吊顶
软膜天花
铝单板吊顶
GRG吊顶节点
石膏板吊顶
矿棉板吊顶