CAD频道
CAD图库
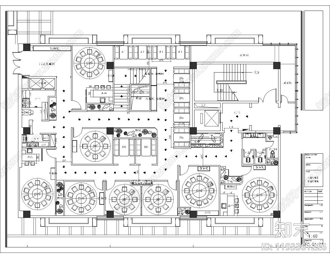
现代中餐厅 主题餐厅 包厢 中餐餐厅 厨具设备 厨房布局 平面图
1/
3
Previous
Next
现代中餐厅CAD下载
ID: 1193361226
复制
上传作者
万象无界
上传时间
2025-04-27
文件大小
10.1M
设计风格:
--
CAD版本:
CAD2007
包含文件:
CAD
授权
普通
立即下载
收藏
分享
举报
相关推荐
综合
餐饮空间
中餐厅
西餐厅
快餐店
自助餐厅
茶餐厅
其他餐饮空间
食堂
奶茶店
咖啡厅