CAD频道
CAD图库
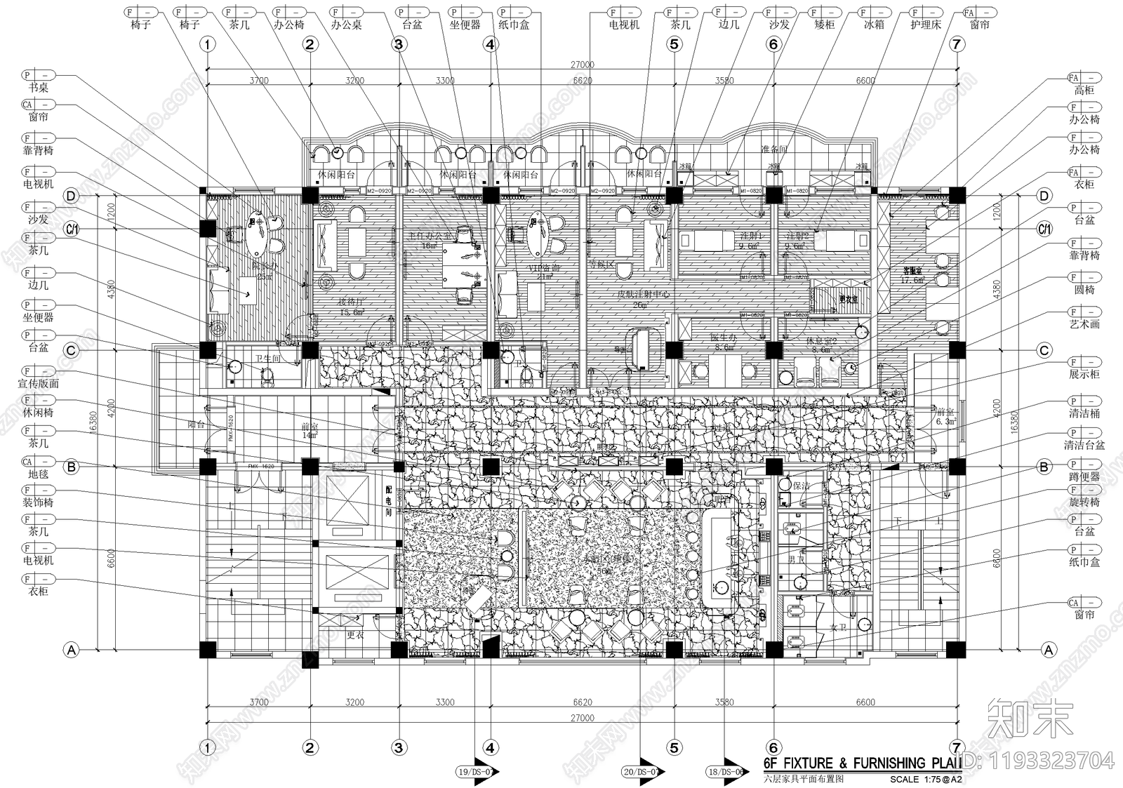
医院 整形医院 某层平面系统图 皮肤注射中心 VIP咨询水吧台 天花灯具...
1/
6
Previous
Next
医院CAD下载
ID: 1193323704
复制
上传作者
74426266987
上传时间
2025-04-27
文件大小
2.25M
设计风格:
--
CAD版本:
CAD2010
包含文件:
CAD
授权
普通
立即下载
收藏
分享
举报
相关推荐
综合
医疗空间
医院
养老院
宠物医院
中医馆
月子中心
其他医疗空间