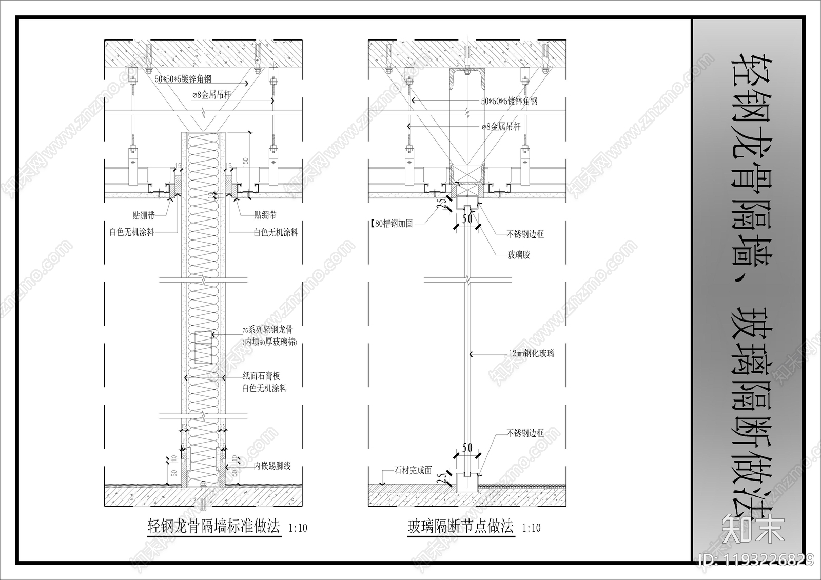
轻钢龙骨隔墙施工图下载【ID:1193226829】

轻钢龙骨隔墙CAD下载

ID: 1193226829
复制
上传作者
(盗模必追)节点图合集(盗模必追)节点图合集

上传时间2025-04-26

文件大小0.95M

设计风格:--

CAD版本:CAD2007

包含文件:CAD

授权独家

立即下载
收藏
分享
举报
相关推荐
综合
墙面节点
轻钢龙骨隔墙
背景墙节点
壁龛节点
隔音墙节点