CAD频道
CAD图库
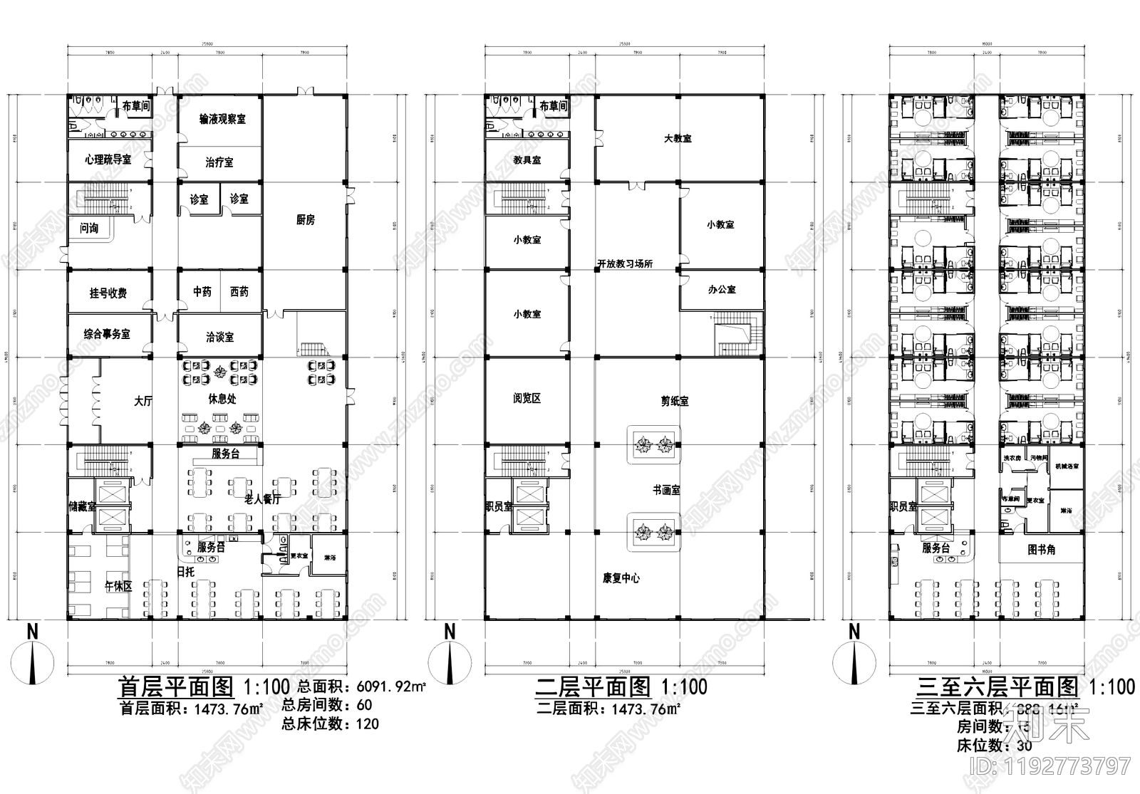
养老院 敬老院疗养院 建筑平面图 老年大学康复中心 餐厅医疗室 双人间床...
1/
6
Previous
Next
养老院CAD下载
ID: 1192773797
复制
上传作者
74426266987
上传时间
2025-04-22
文件大小
1.07M
设计风格:
--
CAD版本:
CAD2010
包含文件:
CAD
授权
普通
立即下载
收藏
分享
举报
相关推荐
综合
医疗空间
养老院
医院
宠物医院
中医馆
月子中心
其他医疗空间