CAD频道
CAD图库
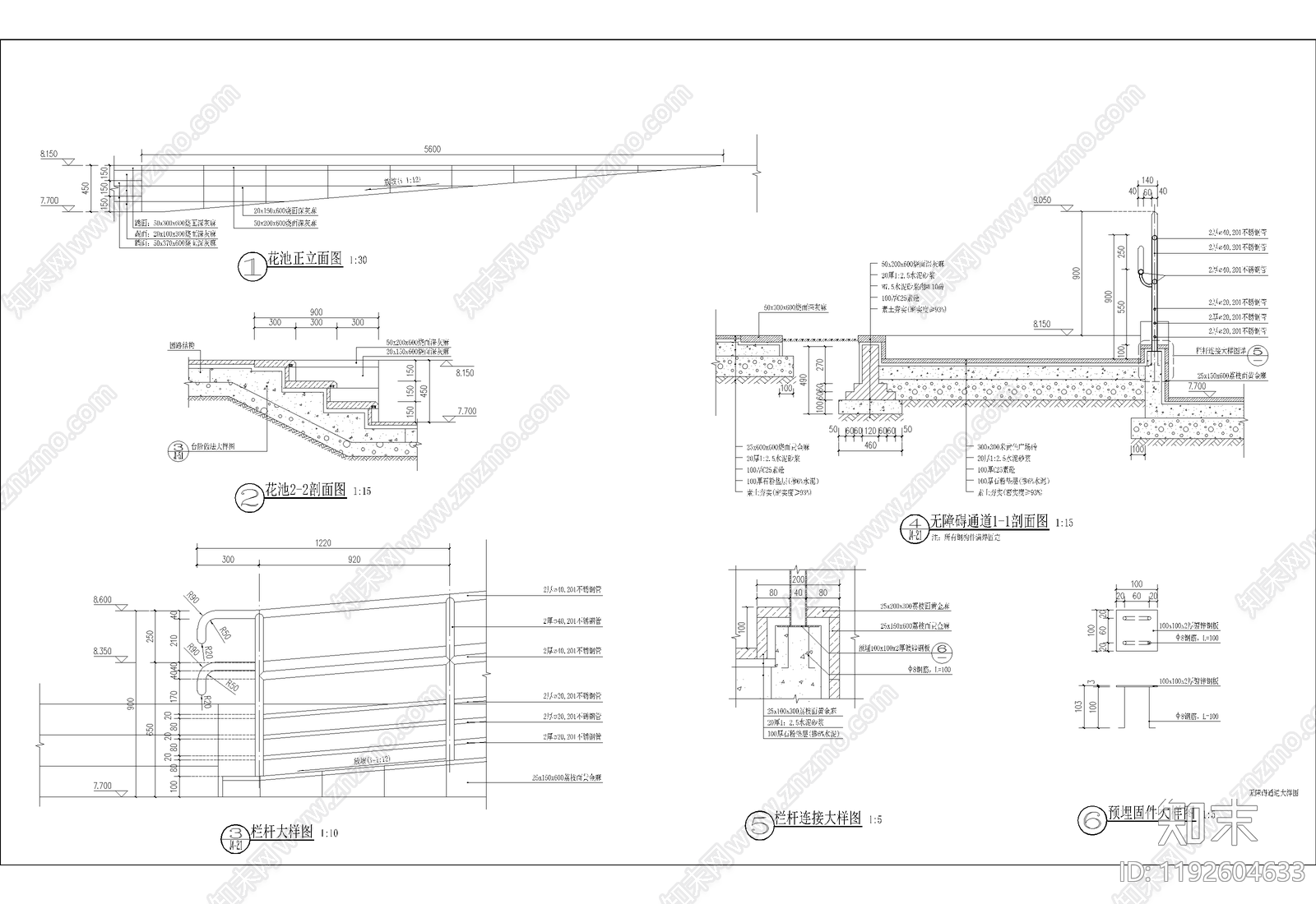
现代坡道 无障碍坡道 残坡详图 不锈钢栏杆做法 踏步做法 施工图
1/
2
Previous
Next
现代坡道CAD下载
ID: 1192604633
复制
上传作者
九日日-互关
上传时间
2025-04-21
文件大小
0.98M
设计风格:
--
CAD版本:
CAD2018
包含文件:
CAD
授权
独家
立即下载
收藏
分享
举报
相关推荐
综合
景观小品
坡道
亭子
廊架
景墙
综合景观小品
雨棚
围墙
挡土墙
入口