CAD频道
CAD图库
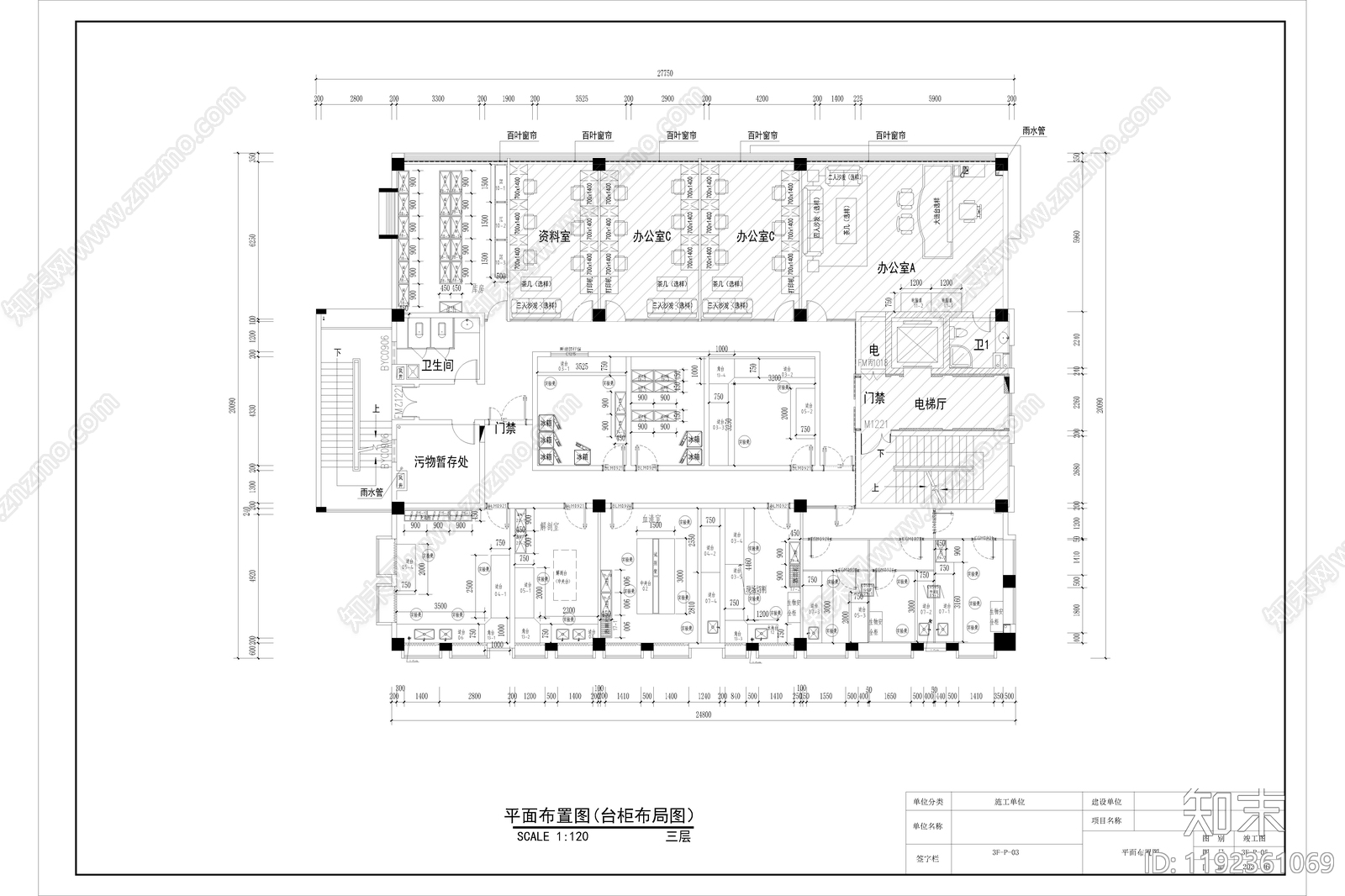
实验室 动物疫病预防控制 实验 施工图
1/
9
Previous
Next
实验室CAD下载
ID: 1192361069
复制
上传作者
挖个水井养白鲨
上传时间
2025-04-18
文件大小
13.85M
设计风格:
--
CAD版本:
CAD2004
包含文件:
CAD
授权
独家
立即下载
收藏
分享
举报
相关推荐
综合
教育空间
实验室
幼儿园
学校
培训中心
其他教育空间
教室
画室
舞蹈室