CAD频道
CAD图库
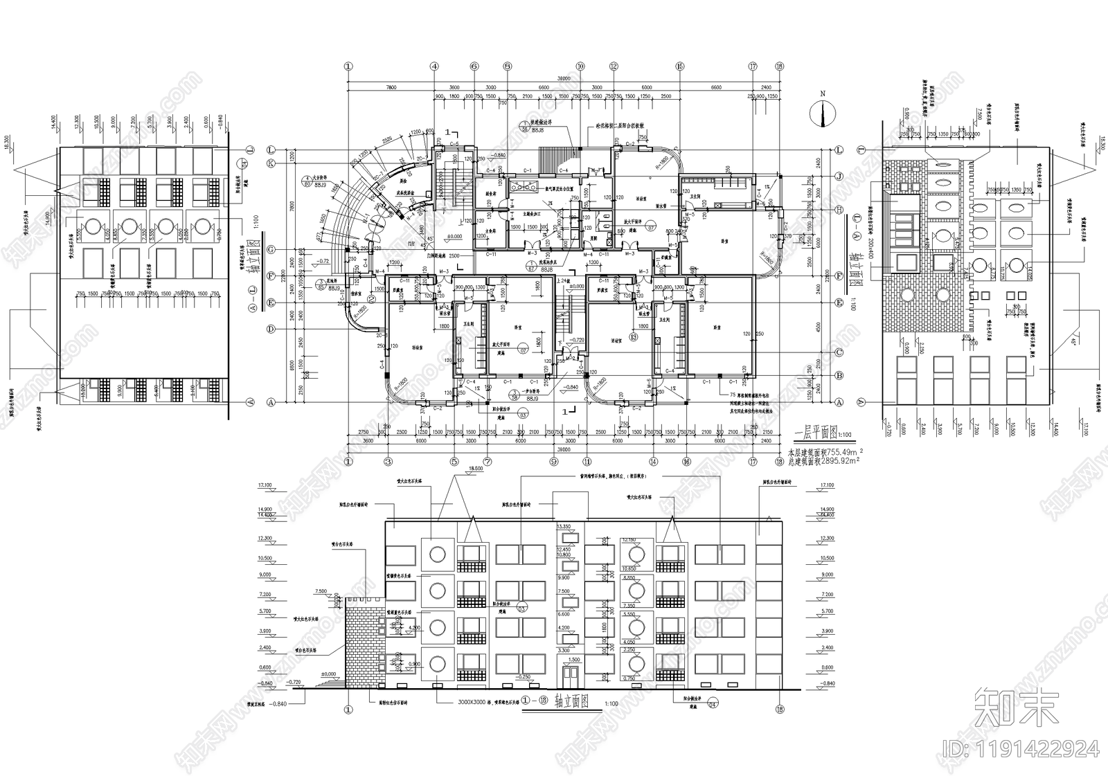
幼儿园建筑 四层托儿所地下室 活动室卧室休息室 医务保健室会议室 主副食...
1/
10
Previous
Next
幼儿园建筑CAD下载
ID: 1191422924
复制
上传作者
74426266987
上传时间
2025-04-09
文件大小
1.08M
设计风格:
--
CAD版本:
CAD2010
包含文件:
CAD
授权
普通
立即下载
收藏
分享
举报
相关推荐
综合
教育建筑
幼儿园建筑
学校建筑