CAD频道
CAD图库
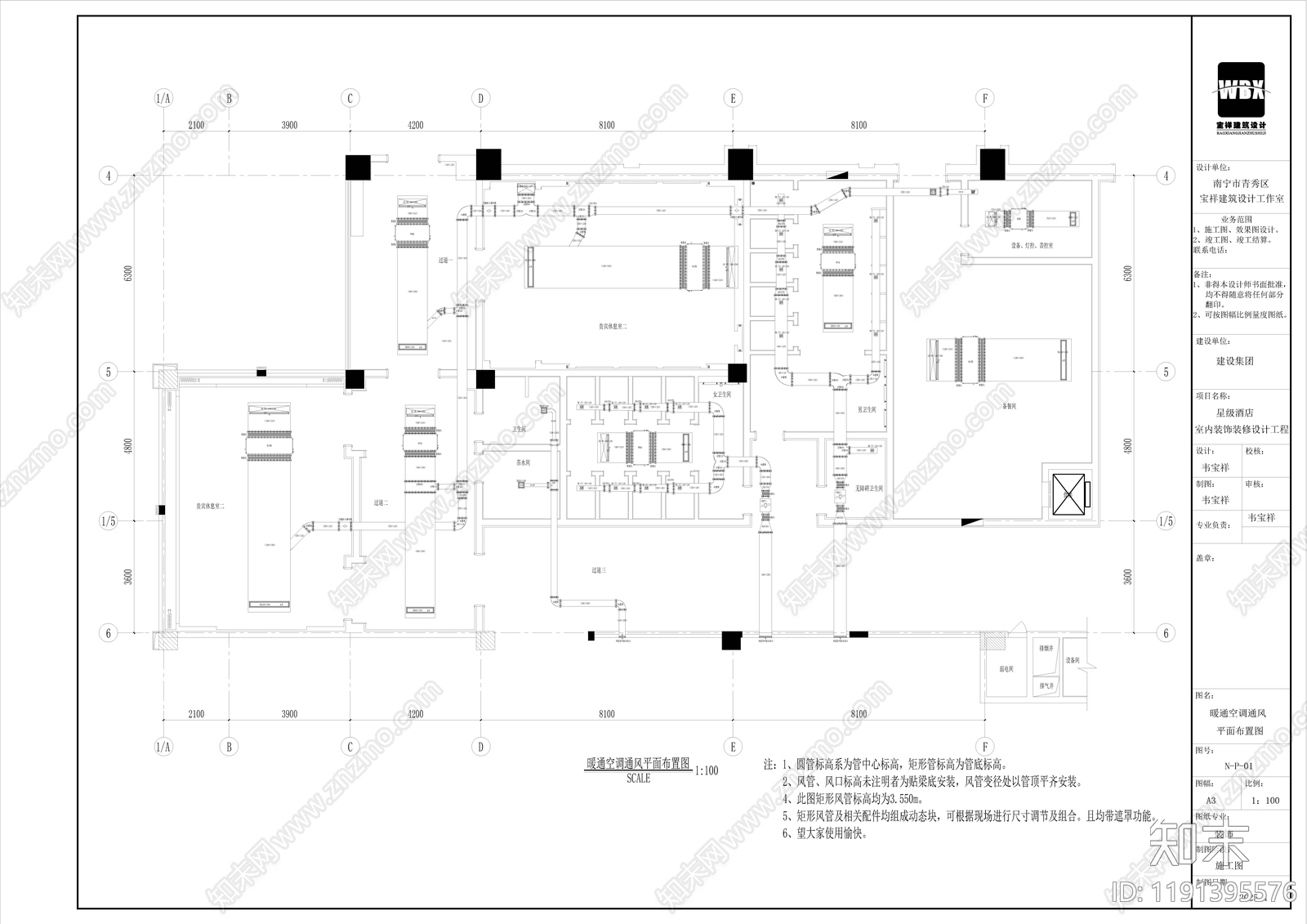
暖通图 暖通空调图 风管平面图 风管图例表 防烟防火图例 施工图
1/
3
Previous
Next
暖通图CAD下载
ID: 1191395576
复制
上传作者
骆驼祥子
上传时间
2025-04-09
文件大小
2.27M
设计风格:
--
CAD版本:
CAD2010
包含文件:
CAD
授权
独家
立即下载
收藏
分享
举报
相关推荐
综合
机电工程
暖通空调
给排水图
水处理
电气图
电气工程节点
消防设施
机械设备
其他机电图纸
建筑给排水