CAD频道
CAD图库
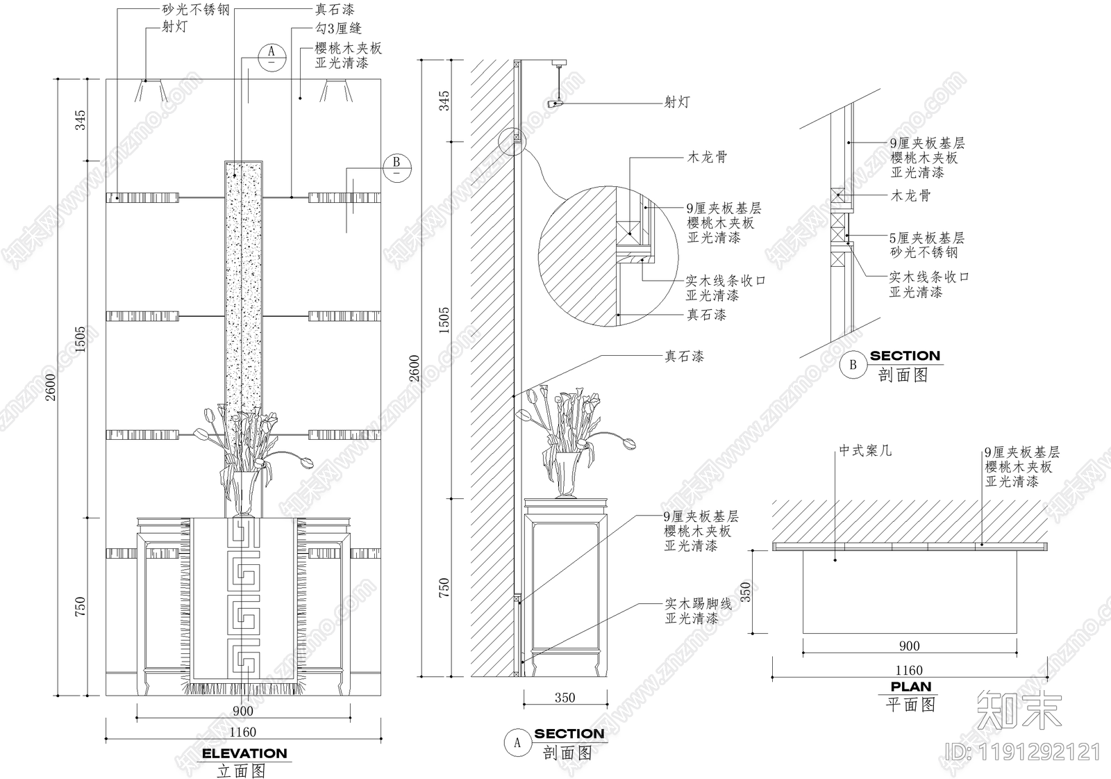
中式玄关 玄关平面图 玄关立面图 隔断节点 案几条几 施工图
中式玄关CAD下载
ID: 1191292121
复制
上传作者
74426266987
上传时间
2025-04-08
文件大小
0.09M
设计风格:
--
CAD版本:
CAD2010
包含文件:
CAD
授权
普通
立即下载
收藏
分享
举报
相关推荐
综合
家装局部空间
玄关
客厅
餐厅
厨房
卫生间
卧室
书房
衣帽间
客餐厅