CAD频道
CAD图库
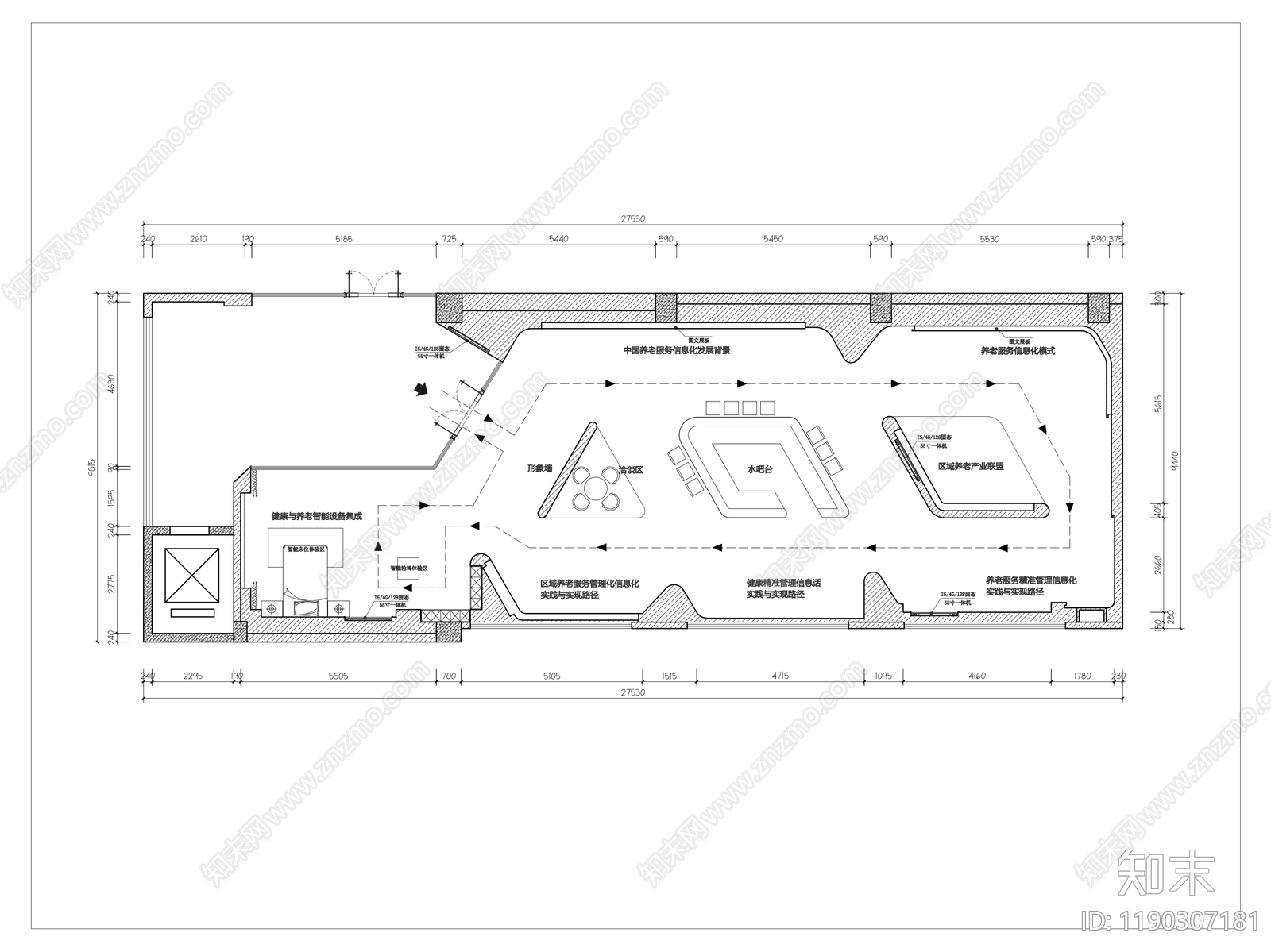
工装平面图 室内平面图 现代科技风 健康养老服务 展厅平面图 施工图
工装平面图CAD下载
ID: 1190307181
复制
上传作者
裁缝匠老张
上传时间
2025-03-29
文件大小
0.09M
设计风格:
--
CAD版本:
CAD2014
包含文件:
CAD
授权
普通
立即下载
收藏
分享
举报
相关推荐
综合
平面图
工装平面图
景观平面图
规划平面图
其他平面图
小区平面图