CAD频道
CAD图库
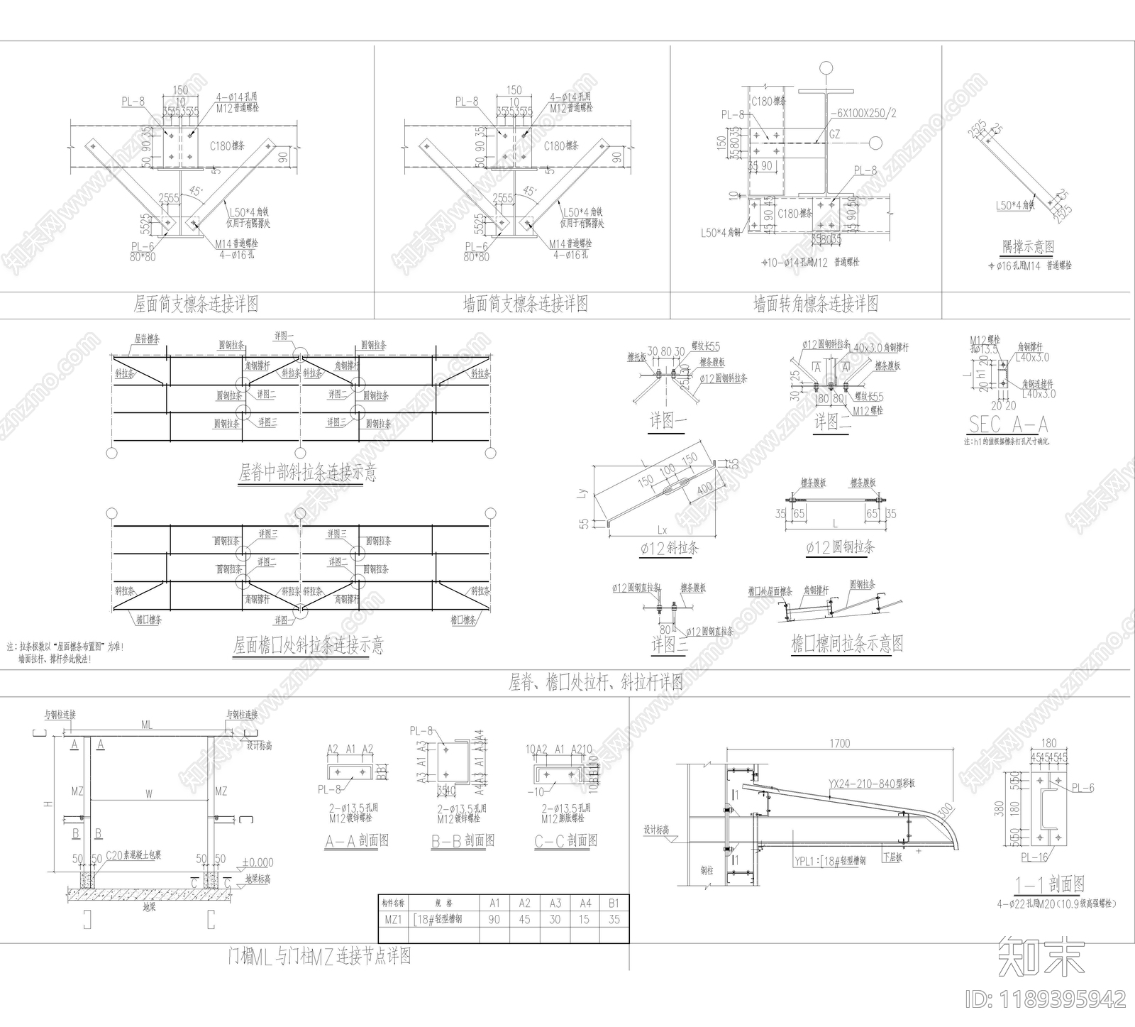
钢结构 屋面楞条连接 墙面筒支檩条连接 墙面转角檩条连接 门楣ML与门柱...
钢结构CAD下载
ID: 1189395942
复制
上传作者
D·威斯曼
上传时间
2025-03-20
文件大小
0.14M
设计风格:
--
CAD版本:
CAD2004
包含文件:
CAD
授权
独家
立即下载
收藏
分享
举报
相关推荐
综合
结构设计
钢结构
混凝土结构
幕墙结构
砌体结构
木结构
结构节点图
其他结构图纸