CAD频道
CAD图库
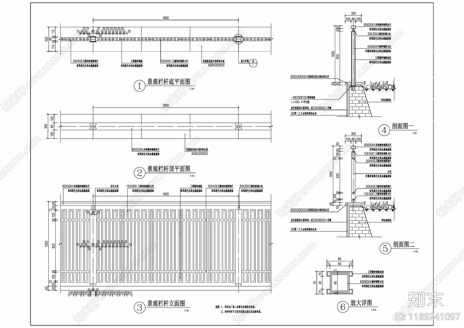
现代栏杆 楼梯栏杆 栏杆扶手 不锈钢栏杆 铁艺栏杆 无障碍扶手 施工图
现代栏杆CAD下载
ID: 1189241097
复制
上传作者
景观设计素材
上传时间
2025-03-19
文件大小
0.56M
设计风格:
--
CAD版本:
CAD2004
包含文件:
CAD
授权
独家
立即下载
收藏
分享
举报
相关推荐
综合
景观小品
栏杆
亭子
廊架
景墙
综合景观小品
雨棚
围墙
挡土墙
入口