CAD频道
CAD图库
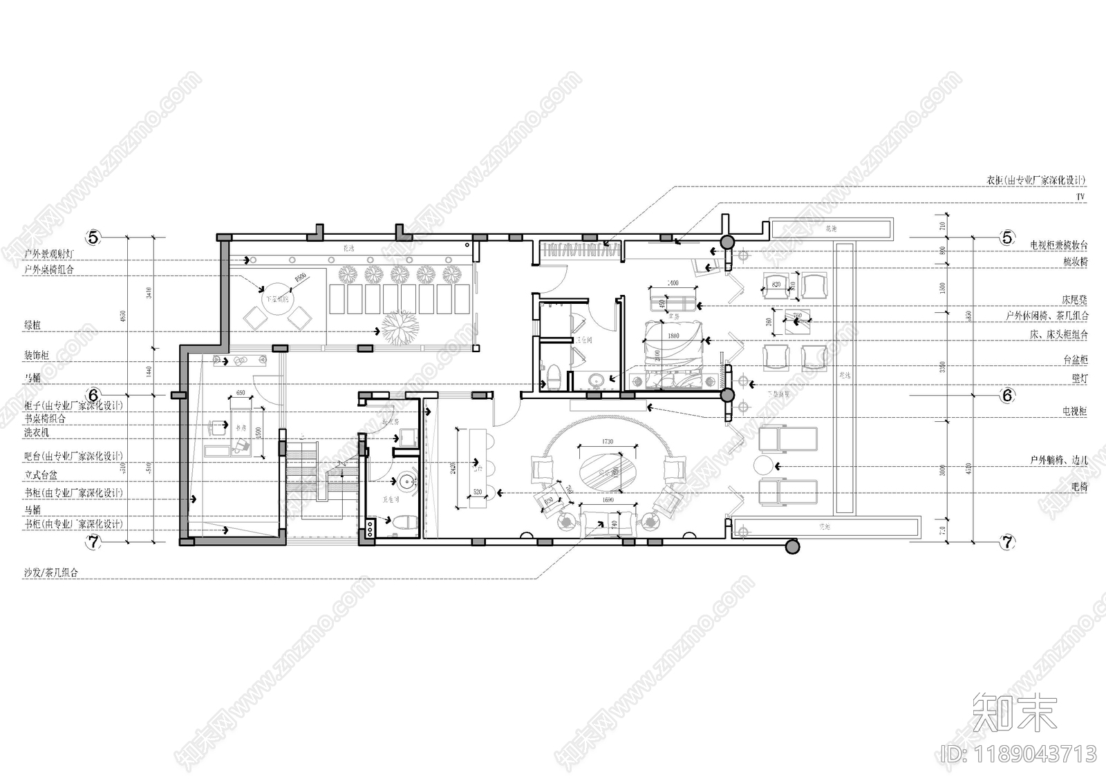
民宿 海南大型民宿 施工图
1/
5
Previous
Next
民宿CAD下载
ID: 1189043713
复制
上传作者
小趴菜园
上传时间
2025-03-17
文件大小
6.86M
设计风格:
--
CAD版本:
CAD2004
包含文件:
CAD
授权
普通
立即下载
收藏
分享
举报
相关推荐
综合
工装
民宿
办公空间
教育空间
文化空间
商业空间
餐饮空间
休闲娱乐空间
其他工装空间
展厅