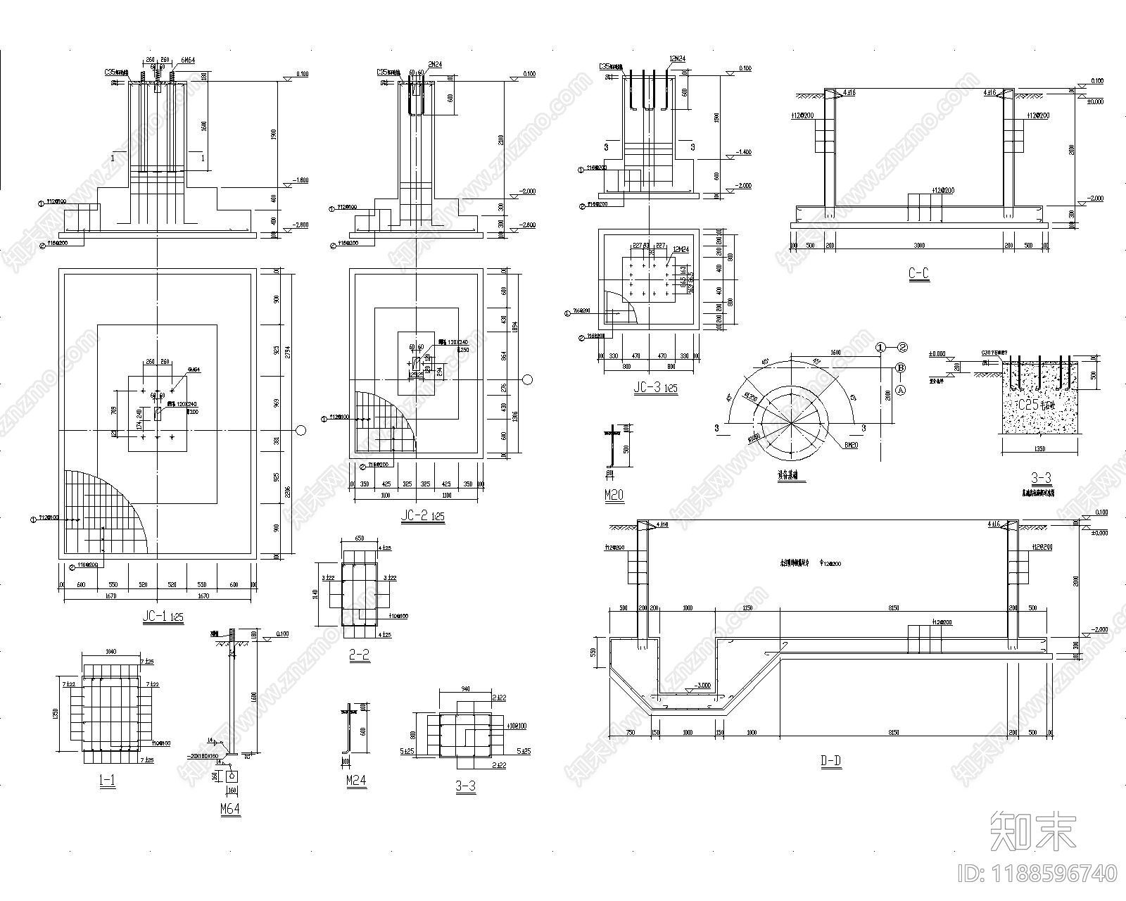
现代其他节点详图施工图下载【ID:1188596740】

现代其他节点详图CAD下载

ID: 1188596740
复制
上传作者
撞大墙啦撞大墙啦

上传时间2025-03-13

文件大小0.17M

设计风格:--

CAD版本:CAD2008

包含文件:CAD

授权普通

立即下载
收藏
分享
举报
相关推荐
综合
节点详图
其他节点详图
吊顶节点
墙面节点
地面节点
门节点
建筑工程节点
景观小品
楼梯节点
水景