CAD频道
CAD图库
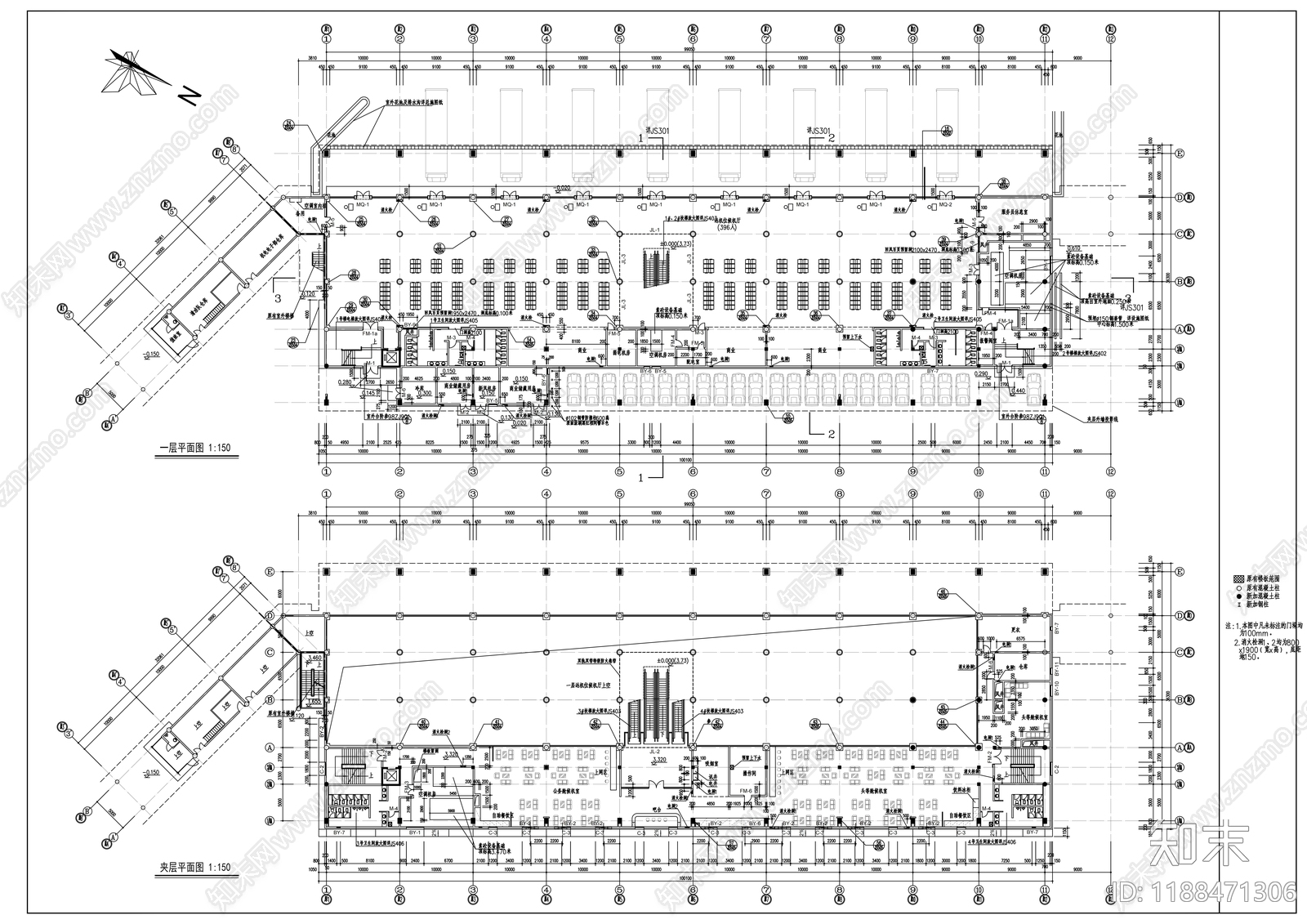
现代机场建筑 机场航站楼建筑施 施工图
1/
10
Previous
Next
现代机场建筑CAD下载
ID: 1188471306
复制
上传作者
常威打来福
上传时间
2025-03-12
文件大小
9.79M
设计风格:
--
CAD版本:
天正CAD6.0
包含文件:
CAD
授权
独家
立即下载
收藏
分享
举报
相关推荐
综合
交通建筑
机场建筑
客运站
加油站
服务区
驿站
其他交通建筑
车站