CAD频道
CAD图库
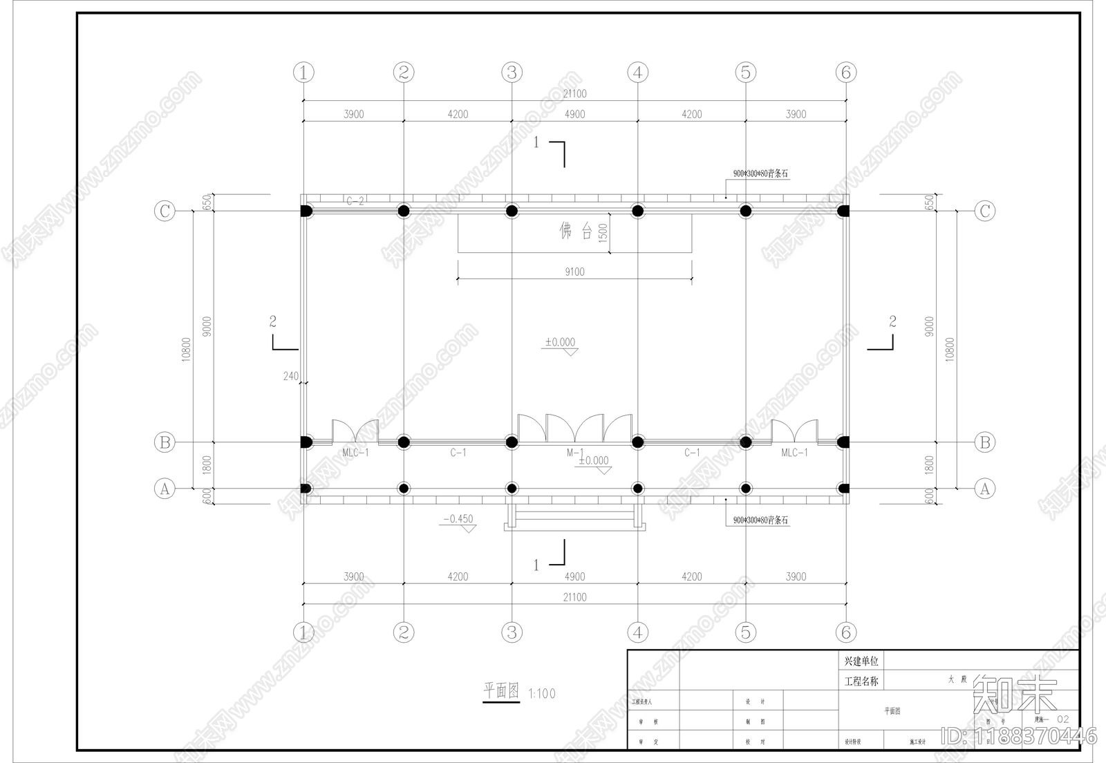
仿古建筑 厢房 大殿 古建筑 配殿 仿古建筑厢房 施工图
1/
5
Previous
Next
仿古建筑CAD下载
ID: 1188370446
复制
上传作者
古建设计
上传时间
2025-03-11
文件大小
2.1M
设计风格:
--
CAD版本:
CAD2007
包含文件:
CAD
授权
独家
立即下载
收藏
分享
举报
相关推荐
综合
古建
仿古建筑
祠堂
寺庙
徽派建筑
其他古建筑