CAD频道
CAD图库
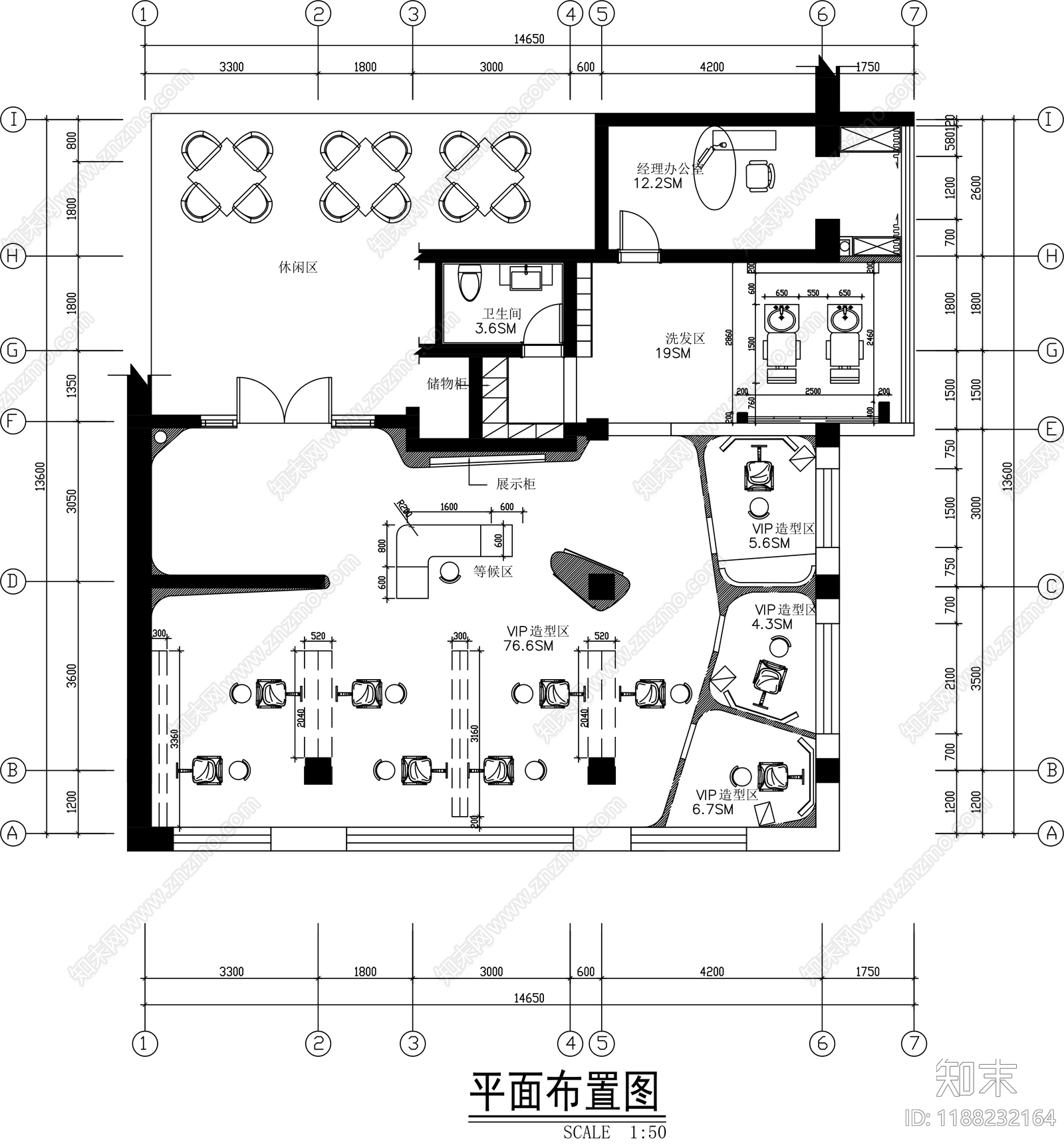
现代其他商业空间 理发店设计平面图 理发馆设计平面图 美发店设计平面图 ...
现代其他商业空间CAD下载
ID: 1188232164
复制
上传作者
用户0ebaa1
上传时间
2025-03-09
文件大小
0.11M
设计风格:
--
CAD版本:
CAD2004
包含文件:
CAD
授权
独家
立即下载
收藏
分享
举报
相关推荐
综合
商业空间
其他商业空间
售楼处
商场
超市
服装店
书店
美甲店
珠宝店
4s店