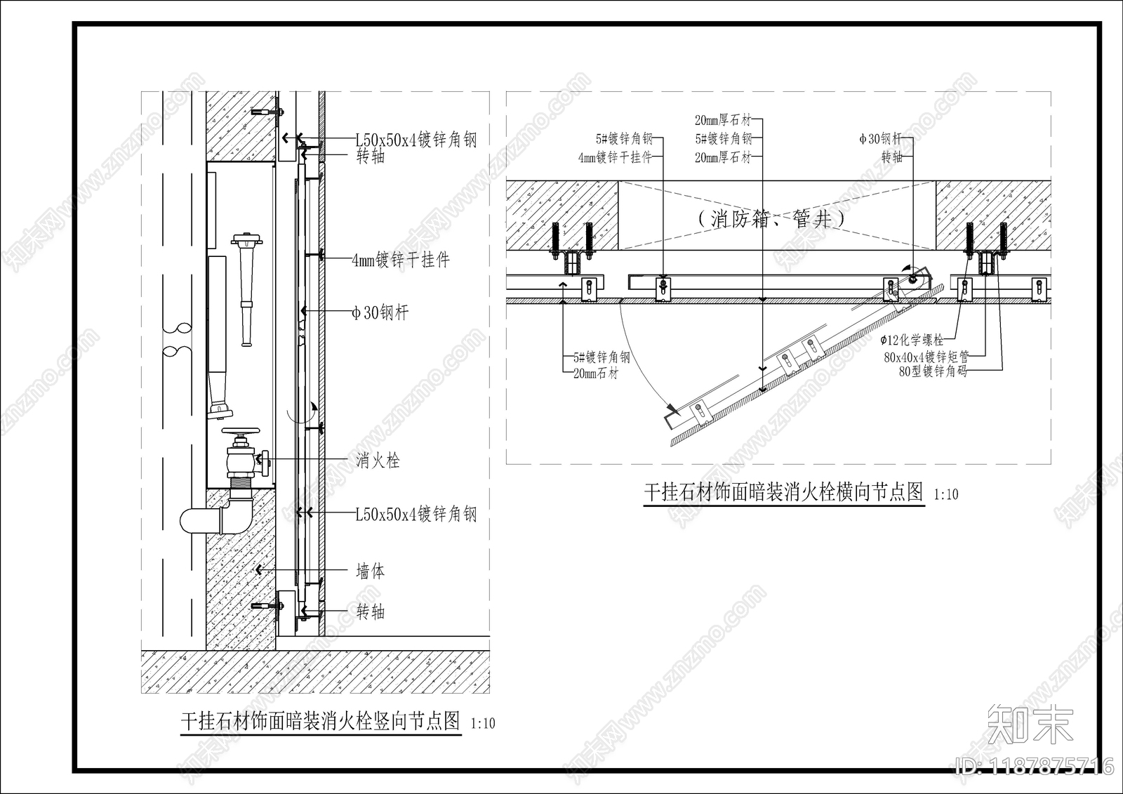
墙面通用节点施工图下载【ID:1187875716】

墙面通用节点CAD下载

ID: 1187875716
复制
上传作者
(盗模必追)节点图合集(盗模必追)节点图合集

上传时间2025-03-05

文件大小0.74M

设计风格:--

CAD版本:CAD2007

包含文件:CAD

授权独家

立即下载
收藏
分享
举报
相关推荐
综合
墙面节点
背景墙节点
轻钢龙骨隔墙
壁龛节点
隔音墙节点