CAD频道
CAD图库
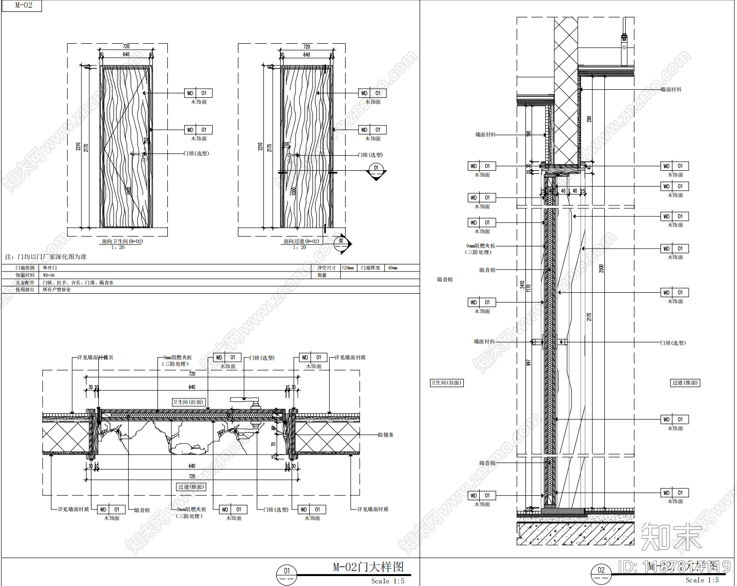
推拉门节点 室内推拉门节点图 施工图
1/
3
Previous
Next
推拉门节点CAD下载
ID: 1187814119
复制
上传作者
67160016
上传时间
2025-03-05
文件大小
2.33M
设计风格:
--
CAD版本:
CAD2004
包含文件:
CAD
授权
普通
立即下载
收藏
分享
举报
相关推荐
综合
门节点
推拉门节点
入户门
铁艺大门
月洞门
玻璃门节点
隐形门节点
综合门节点