
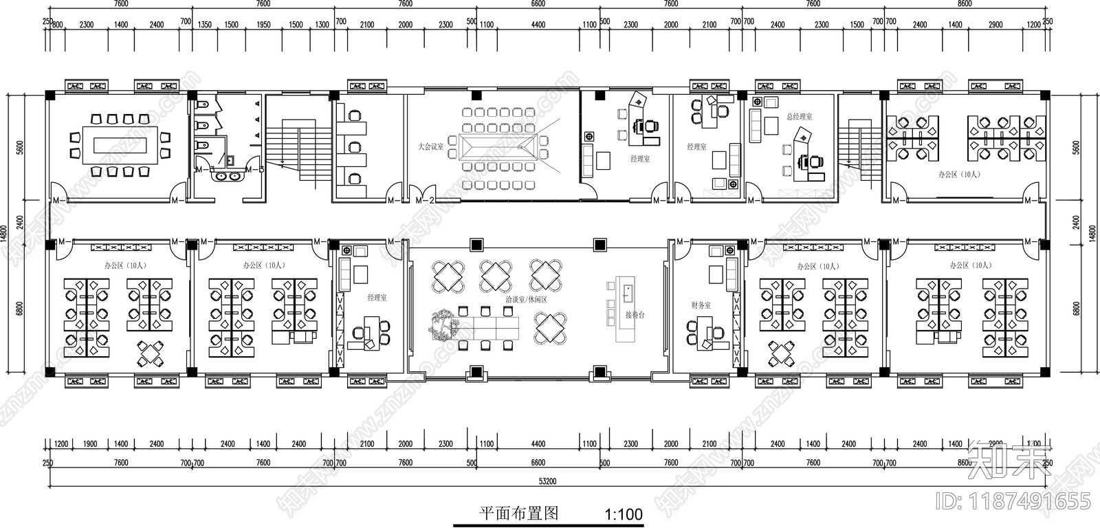
现代整体办公空间CAD下载
ID: 1187491655
复制
上传作者
用户0ebaa1
用户0ebaa1上传时间2025-03-02
文件大小0.24M
设计风格:--
CAD版本:CAD2004
包含文件:CAD
授权独家
立即下载
收藏
分享
举报
相关推荐
综合
办公空间
整体办公空间
开放办公室
会议室
休息室
独立办公室
直播间
茶水间
接待室
工作室

用户0ebaa1上传时间2025-03-02
文件大小0.24M
设计风格:--
CAD版本:CAD2004
包含文件:CAD
授权独家