CAD频道
CAD图库
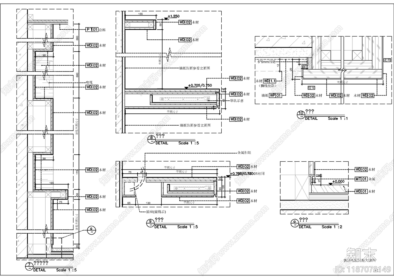
背景墙节点 电视柜墙身大样图 施工图
1/
4
Previous
Next
背景墙节点CAD下载
ID: 1187078149
复制
上传作者
大白搬砖来了
上传时间
2025-02-26
文件大小
1.46M
设计风格:
--
CAD版本:
CAD2004
包含文件:
CAD
授权
独家
立即下载
收藏
分享
举报
相关推荐
综合
墙面节点
背景墙节点
轻钢龙骨隔墙
壁龛节点
隔音墙节点