CAD频道
CAD图库
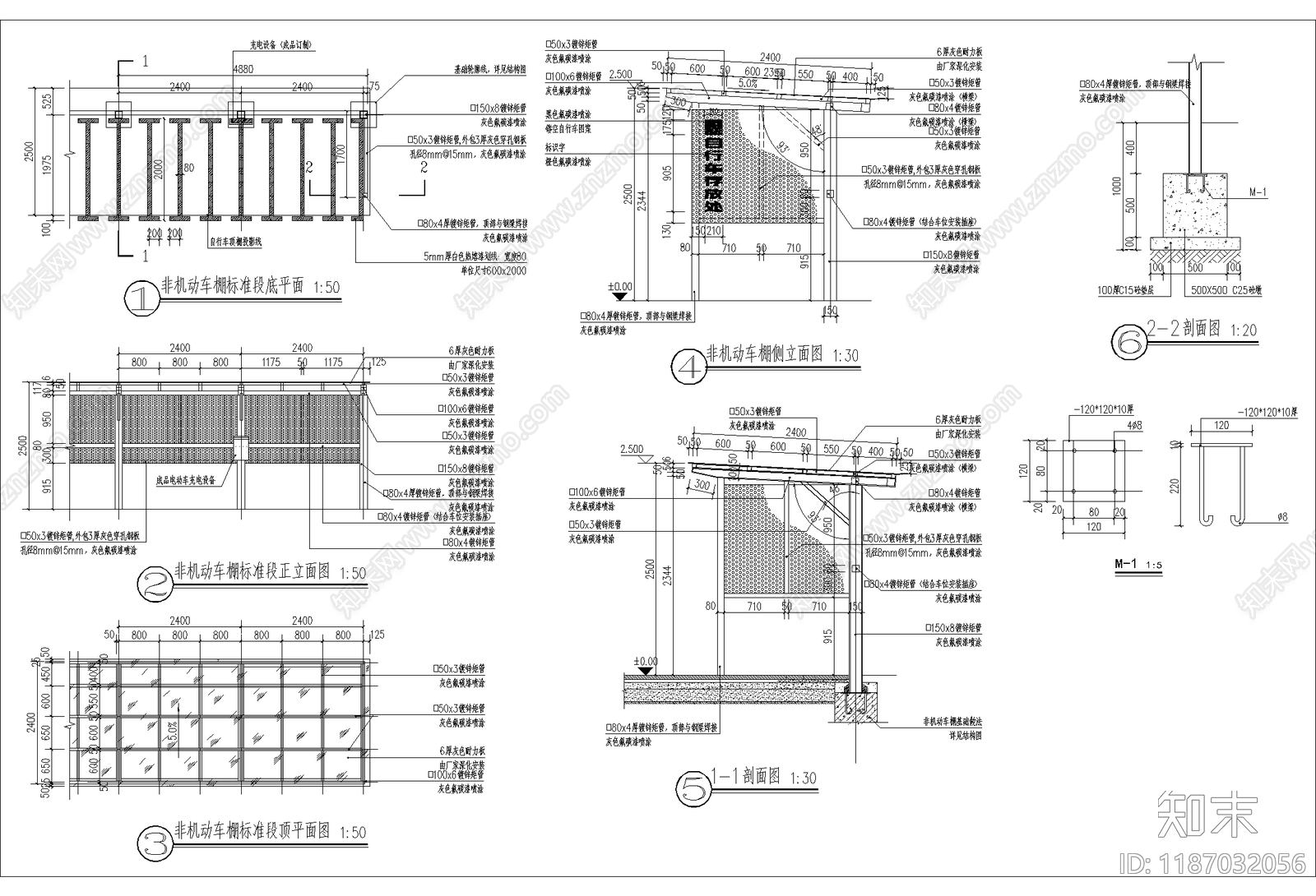
现代雨棚 非机动车棚详图 耐力板顶棚 遮阳棚 钢结构雨棚 施工图
现代雨棚CAD下载
ID: 1187032056
复制
上传作者
851021(互关)
上传时间
2025-02-26
文件大小
1.82M
设计风格:
--
CAD版本:
CAD2018
包含文件:
CAD
授权
独家
立即下载
收藏
分享
举报
相关推荐
综合
景观小品
雨棚
亭子
廊架
景墙
综合景观小品
围墙
挡土墙
入口
景观坐凳