
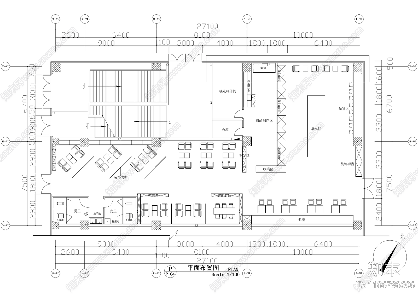
咖啡厅CAD下载
ID: 1186798606
复制
上传作者
74426266987
74426266987上传时间2025-02-23
文件大小0.12M
设计风格:--
CAD版本:CAD2010
包含文件:CAD
授权普通
立即下载
收藏
分享
举报
相关推荐
综合
餐饮空间
咖啡厅
中餐厅
西餐厅
快餐店
自助餐厅
茶餐厅
其他餐饮空间
食堂
奶茶店

74426266987上传时间2025-02-23
文件大小0.12M
设计风格:--
CAD版本:CAD2010
包含文件:CAD
授权普通