CAD频道
CAD图库
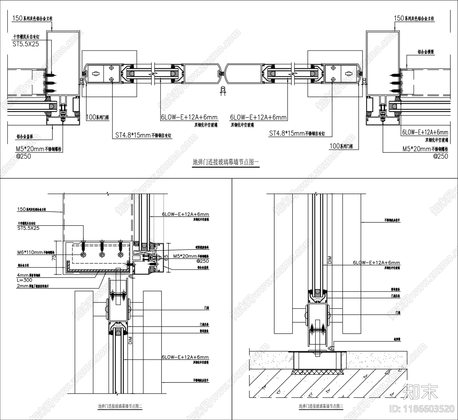
玻璃门节点 玻璃地弹门 地弹门节点 地弹门连接玻璃幕 玻璃平开门 地弹门...
玻璃门节点CAD下载
ID: 1186603520
复制
上传作者
*晴天~
上传时间
2025-02-21
文件大小
0.16M
设计风格:
--
CAD版本:
CAD2004
包含文件:
CAD
授权
普通
立即下载
收藏
分享
举报
相关推荐
综合
门节点
玻璃门节点
入户门
铁艺大门
月洞门
推拉门节点
隐形门节点
综合门节点