CAD频道
CAD图库
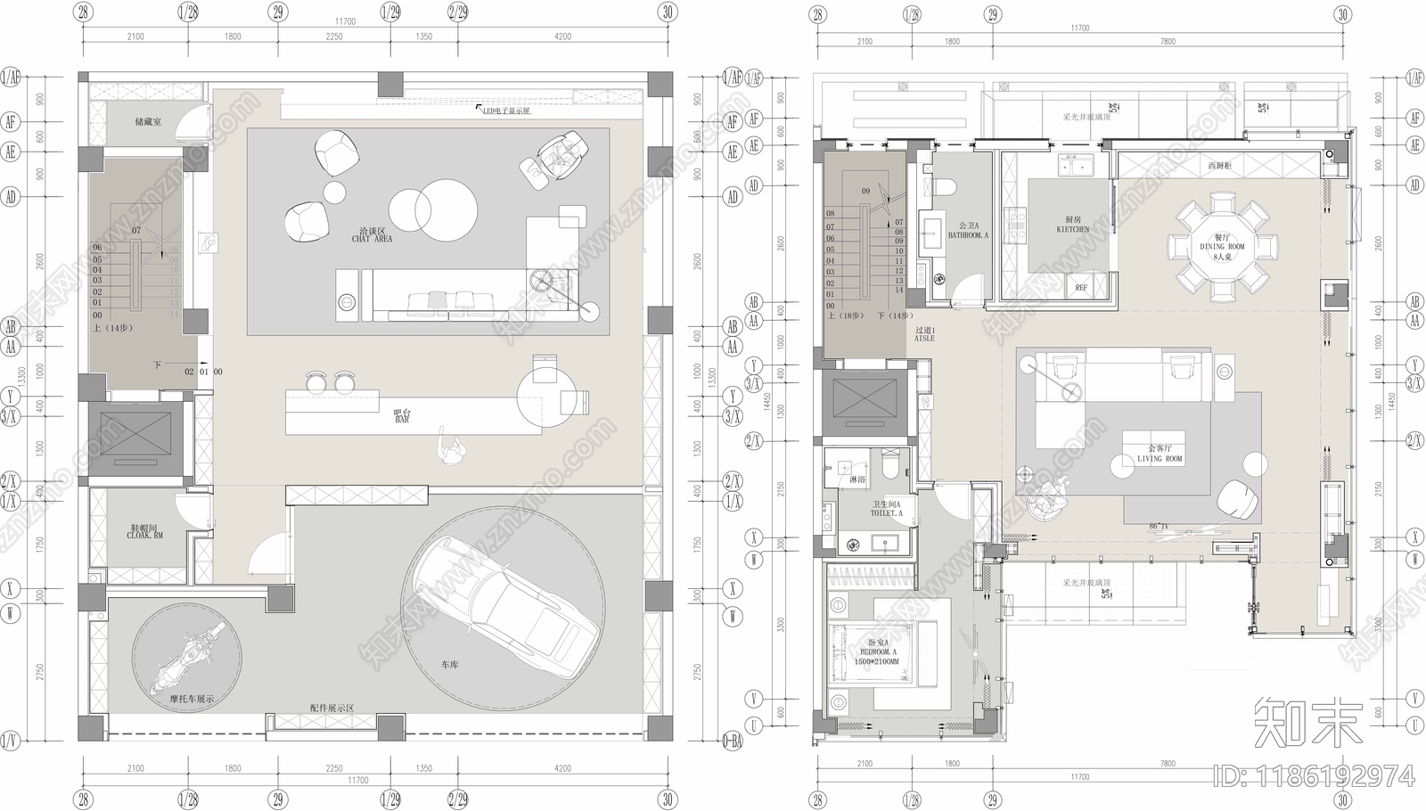
家装平面图 五层别墅平面方案 施工图
1/
7
Previous
Next
家装平面图CAD下载
ID: 1186192974
复制
上传作者
爱乐百氏K*Y
上传时间
2025-02-17
文件大小
14.47M
设计风格:
--
CAD版本:
CAD2018
包含文件:
CAD
授权
独家
立即下载
收藏
分享
举报
相关推荐
综合
平立面系统图
家装平面图
建筑平面图
平面图
立面图/剖面图