1/2


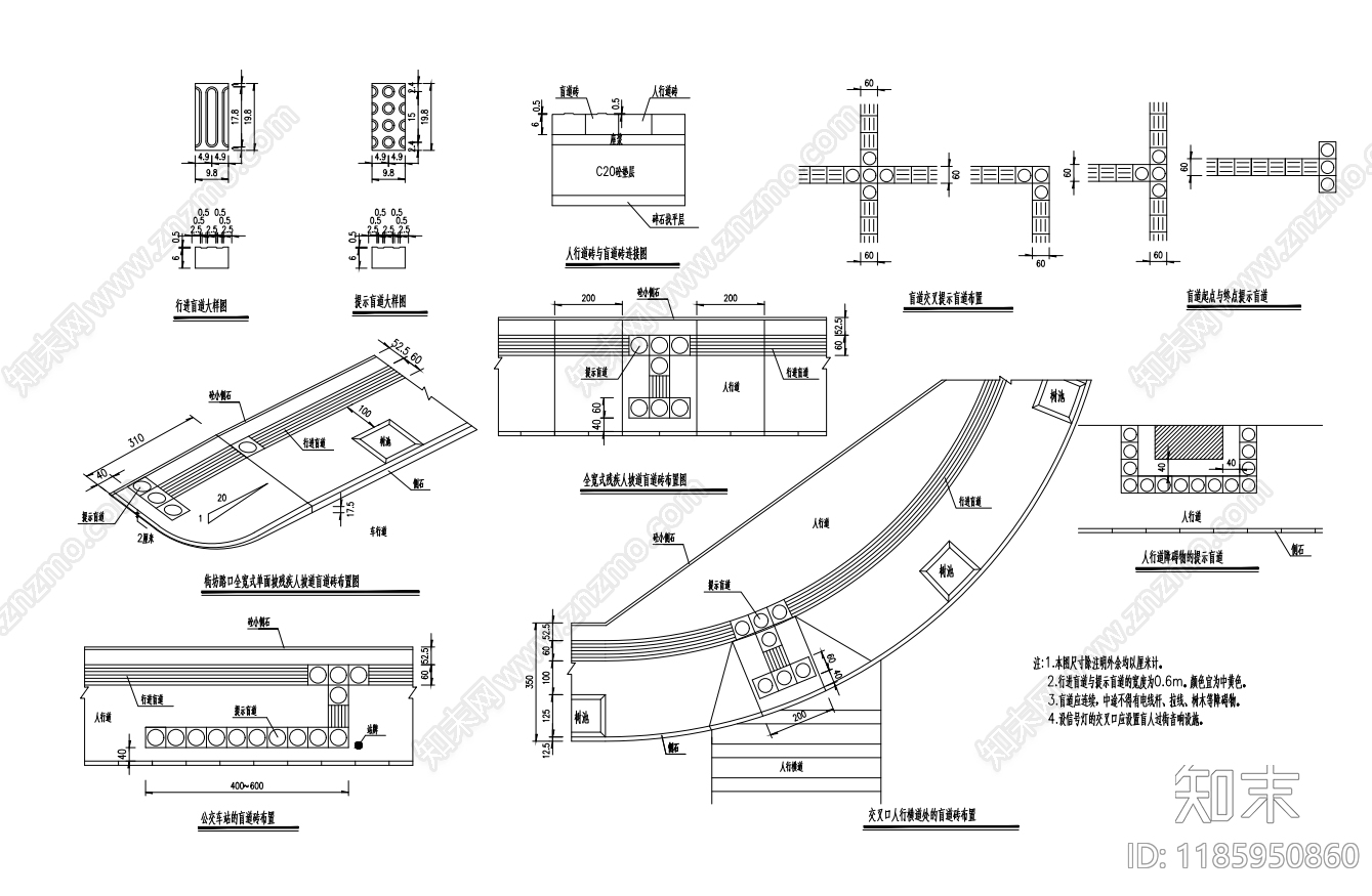
路面节点CAD下载
ID: 1185950860
复制
上传作者
23625011181435
23625011181435上传时间2025-02-14
文件大小0.5M
设计风格:--
CAD版本:CAD2004
包含文件:CAD
授权独家
立即下载
收藏
分享
举报
相关推荐
综合
地面节点
路面节点
地坪漆
地台节点
地毯节点
门槛石节点
木地板
花岗岩
地面综合节点


23625011181435上传时间2025-02-14
文件大小0.5M
设计风格:--
CAD版本:CAD2004
包含文件:CAD
授权独家