CAD频道
CAD图库
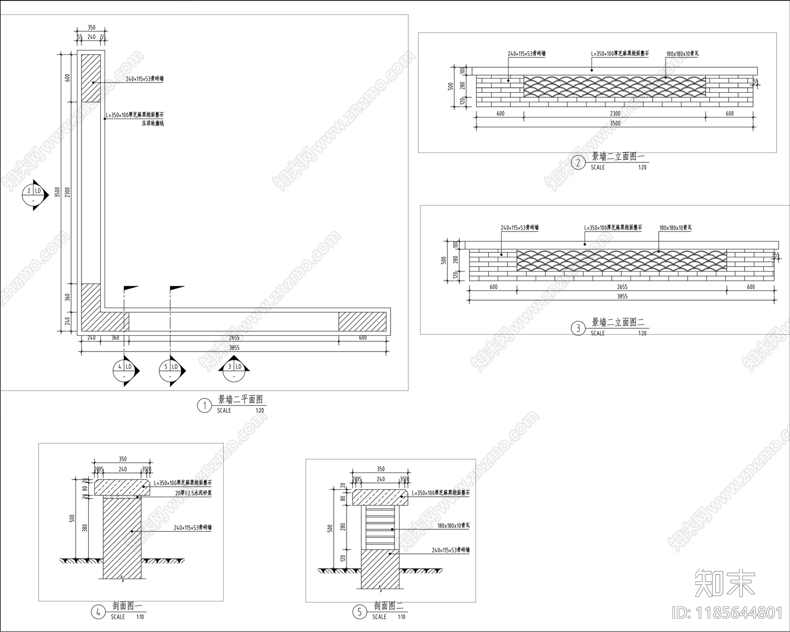
现代景墙 砖砌桌凳 青砖坐凳 青砖矮墙 施工图
现代景墙CAD下载
ID: 1185644801
复制
上传作者
景观设计小乐
上传时间
2025-02-10
文件大小
1.26M
设计风格:
--
CAD版本:
CAD2007
包含文件:
CAD
授权
普通
立即下载
收藏
分享
举报
相关推荐
综合
景观小品
景墙
亭子
廊架
综合景观小品
雨棚
围墙
挡土墙
入口
景观坐凳