1/10


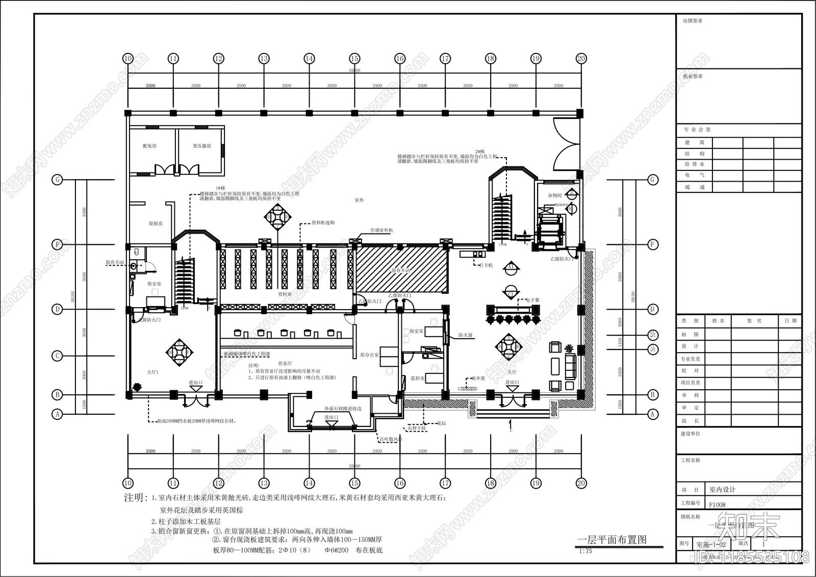
现代整体办公空间CAD下载
ID: 1185525108
复制
上传作者
常威打来福
常威打来福上传时间2025-02-08
文件大小12.57M
设计风格:--
CAD版本:天正CAD6.0
包含文件:CAD
授权独家
立即下载
收藏
分享
举报
相关推荐
综合
办公空间
整体办公空间
开放办公室
会议室
休息室
独立办公室
直播间
茶水间
接待室
工作室


常威打来福上传时间2025-02-08
文件大小12.57M
设计风格:--
CAD版本:天正CAD6.0
包含文件:CAD
授权独家