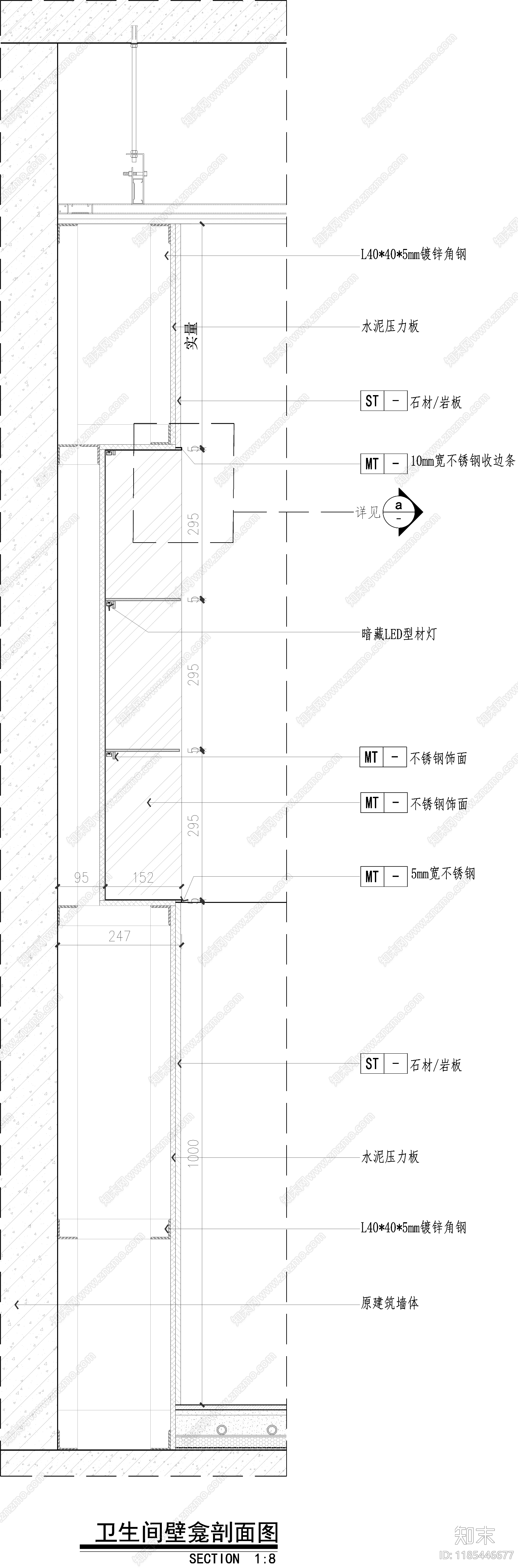
现代卫生间施工图下载【ID:1185446677】

现代卫生间CAD下载

ID: 1185446677
复制
上传作者
W666W666

上传时间2025-02-07

文件大小0.13M

设计风格:--

CAD版本:CAD2007

包含文件:CAD

授权普通

立即下载
收藏
分享
举报
相关推荐
综合
家装局部空间
卫生间
客厅
餐厅
厨房
卧室
书房
衣帽间
客餐厅
儿童房