CAD频道
CAD图库
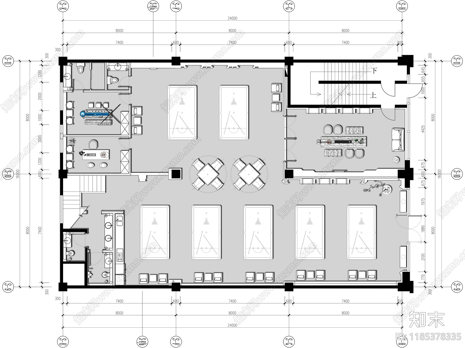
现代其他休闲娱乐空间 台球馆 施工图
1/
2
Previous
Next
现代其他休闲娱乐空间CAD下载
ID: 1185378335
复制
上传作者
洪瑞图库
上传时间
2025-02-06
文件大小
0.85M
设计风格:
--
CAD版本:
CAD2004
包含文件:
CAD
授权
独家
立即下载
收藏
分享
举报
相关推荐
综合
休闲娱乐空间
其他休闲娱乐空间
会所
美容院
理发店
电影院
茶馆
健身房
KTV
酒吧