CAD频道
CAD图库
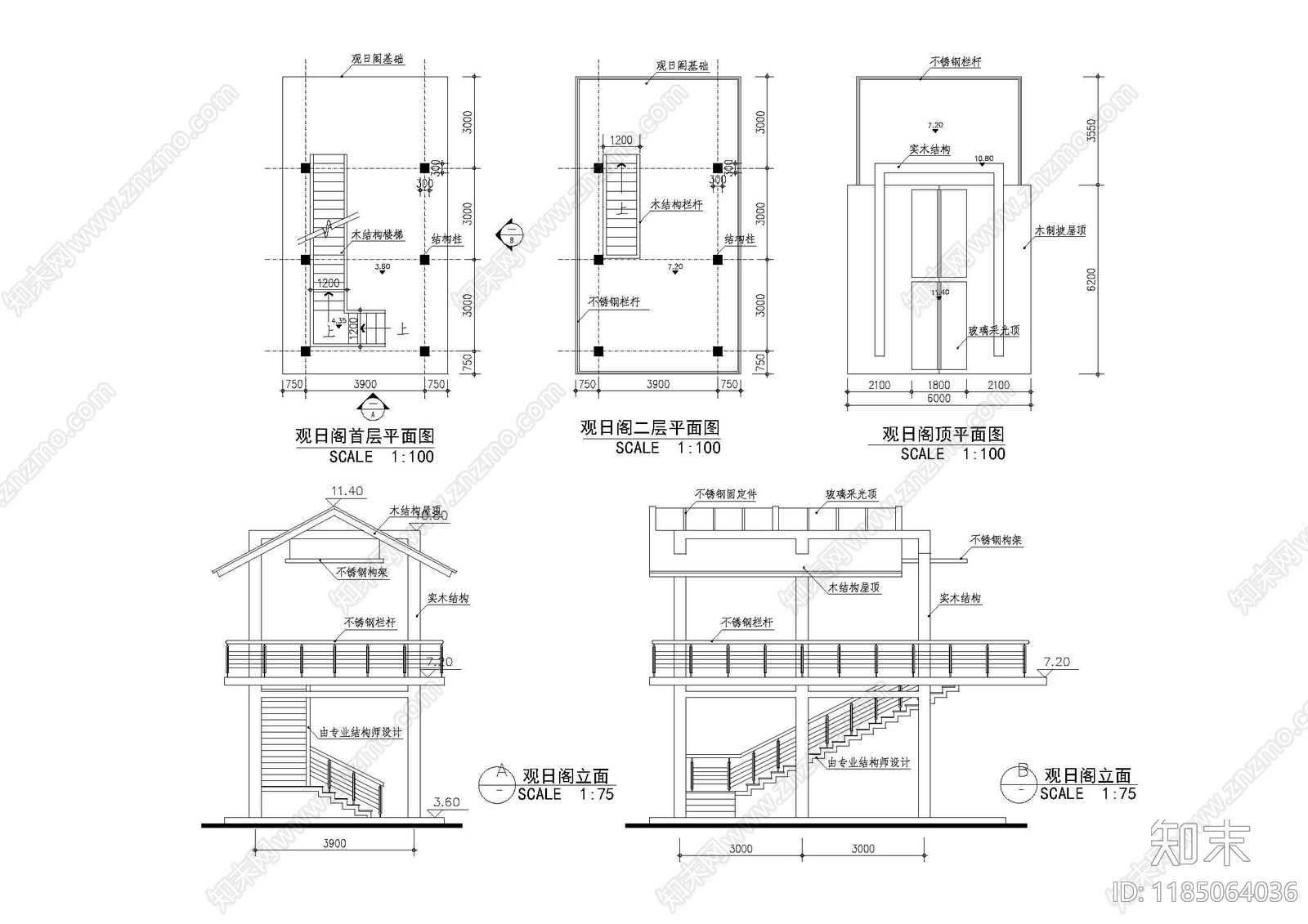
新中式中式亭子 楼房 凉亭 木亭 景观亭 园亭详图 施工图
新中式中式亭子CAD下载
ID: 1185064036
复制
上传作者
爱乱跑的鱼(互关)
上传时间
2025-01-26
文件大小
0.16M
设计风格:
--
CAD版本:
CAD2015
包含文件:
CAD
授权
独家
立即下载
收藏
分享
举报
相关推荐
综合
景观小品
亭子
廊架
景墙
综合景观小品
雨棚
围墙
挡土墙
入口
景观坐凳