CAD频道
CAD图库
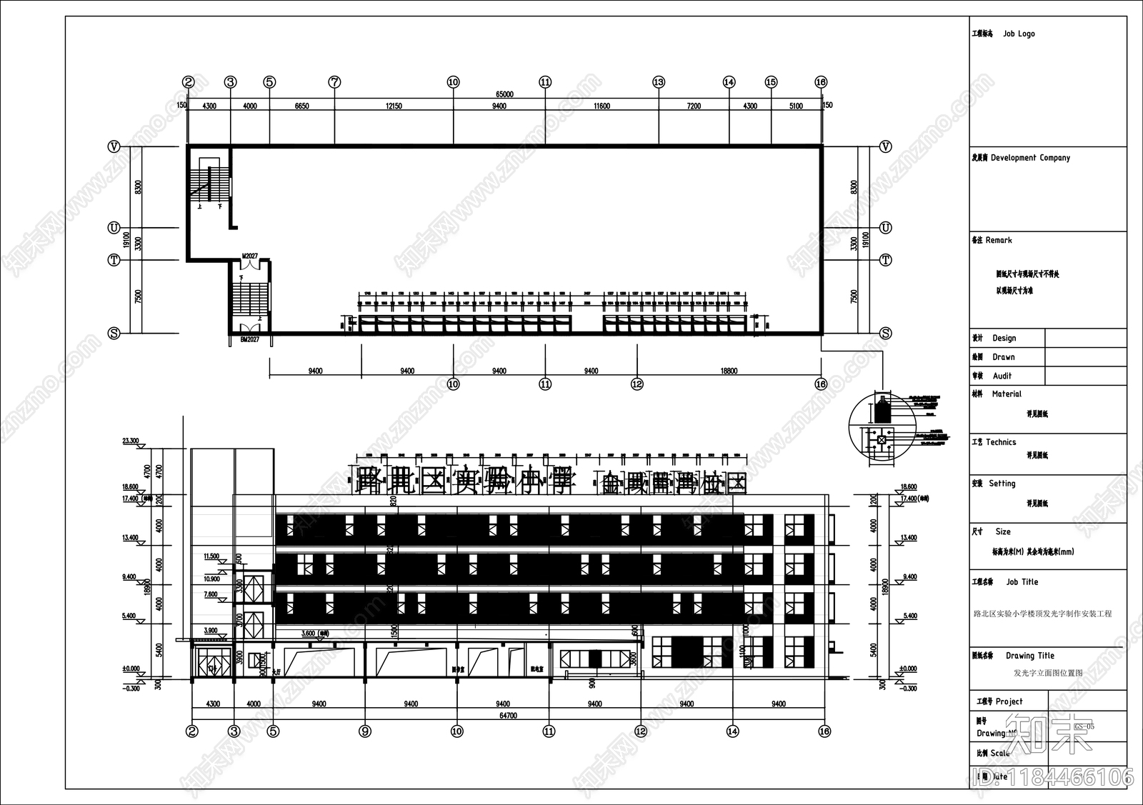
钢结构 钢结构阁楼 钢结构夹层 钢结构楼梯 钢结构连廊 钢结构建筑 施工...
1/
3
Previous
Next
钢结构CAD下载
ID: 1184466106
复制
上传作者
设计师
上传时间
2025-01-15
文件大小
10.23M
设计风格:
--
CAD版本:
CAD2004
包含文件:
CAD
授权
普通
立即下载
收藏
分享
举报
相关推荐
综合
家装局部空间
阁楼
客厅
餐厅
厨房
卫生间
卧室
书房
衣帽间
客餐厅