CAD频道
CAD图库
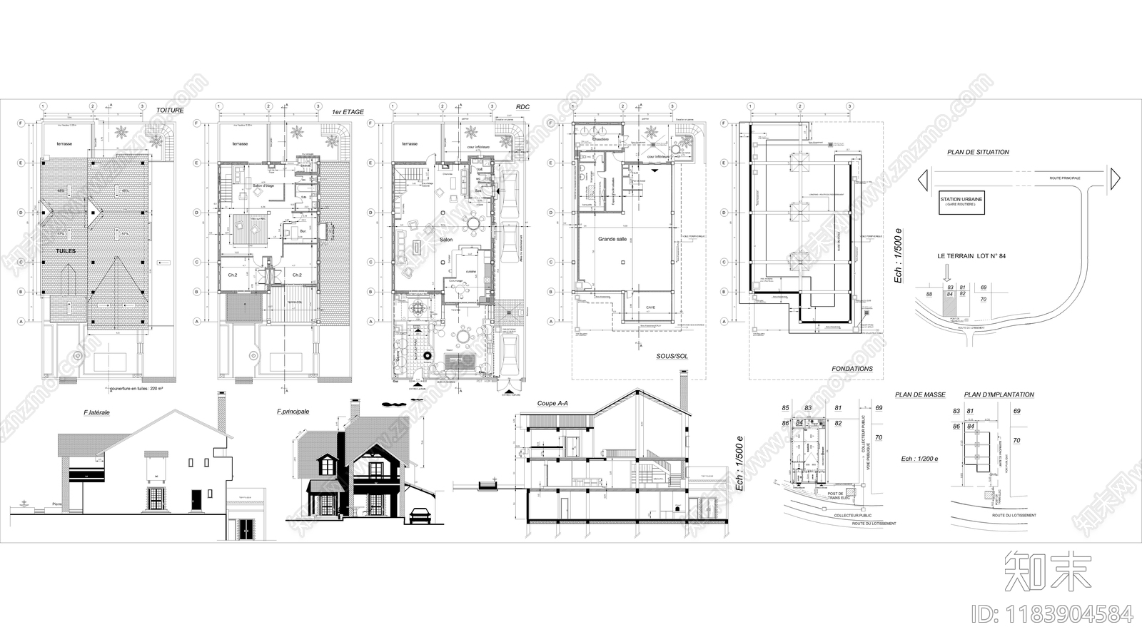
现代别墅建筑 乡村两层房子建筑 小别墅 农村别墅 自建房 独栋别墅 施工...
现代别墅建筑CAD下载
ID: 1183904584
复制
上传作者
花好月圆
上传时间
2025-01-08
文件大小
0.39M
设计风格:
--
CAD版本:
CAD2008
包含文件:
CAD
授权
普通
立即下载
收藏
分享
举报
相关推荐
综合
居住建筑
别墅建筑
住宅楼建筑
四合院
其他居住建筑
高层住宅
多层住宅
低层住宅
公寓建筑
联排住宅