CAD频道
CAD图库
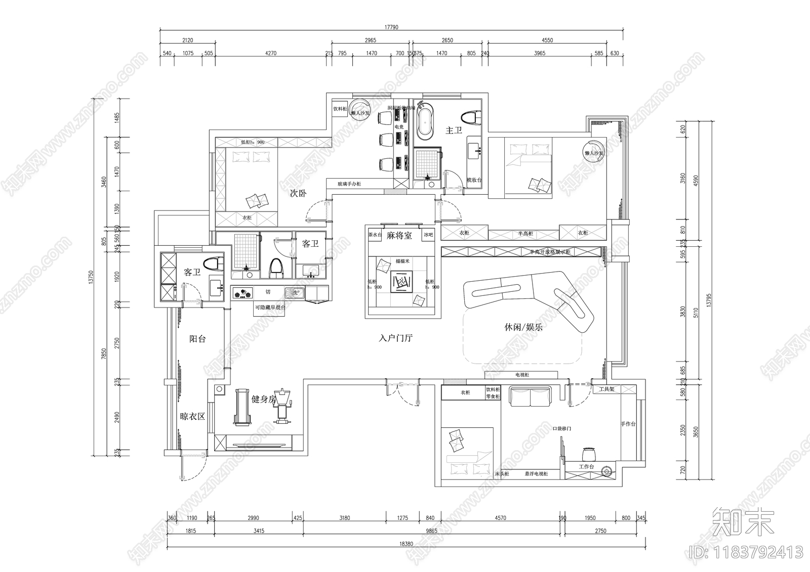
平层 三室一厅 两室一厅 样板间 平层平面图 四室两厅 平面图
平层CAD下载
ID: 1183792413
复制
上传作者
*墨绿指甲*
上传时间
2025-01-06
文件大小
0.23M
设计风格:
--
CAD版本:
CAD2004
包含文件:
CAD
授权
独家
立即下载
收藏
分享
举报
相关推荐
综合
平层
小户型平层
大平层
超大型平层