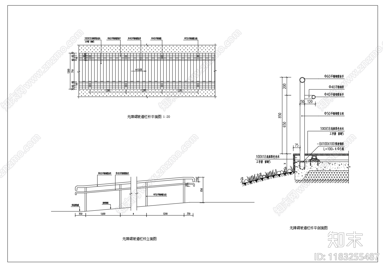
现代其他节点详图施工图下载【ID:1183255487】

现代其他节点详图CAD下载

ID: 1183255487
复制
上传作者
小小鱼鱼小小鱼鱼

上传时间2024-12-31

文件大小0.09M

设计风格:--

CAD版本:CAD2004

包含文件:CAD

授权独家

立即下载
收藏
分享
举报
相关推荐
综合
节点详图
其他节点详图
吊顶节点
墙面节点
地面节点
门节点
建筑工程节点
景观小品
楼梯节点
水景