CAD频道
CAD图库
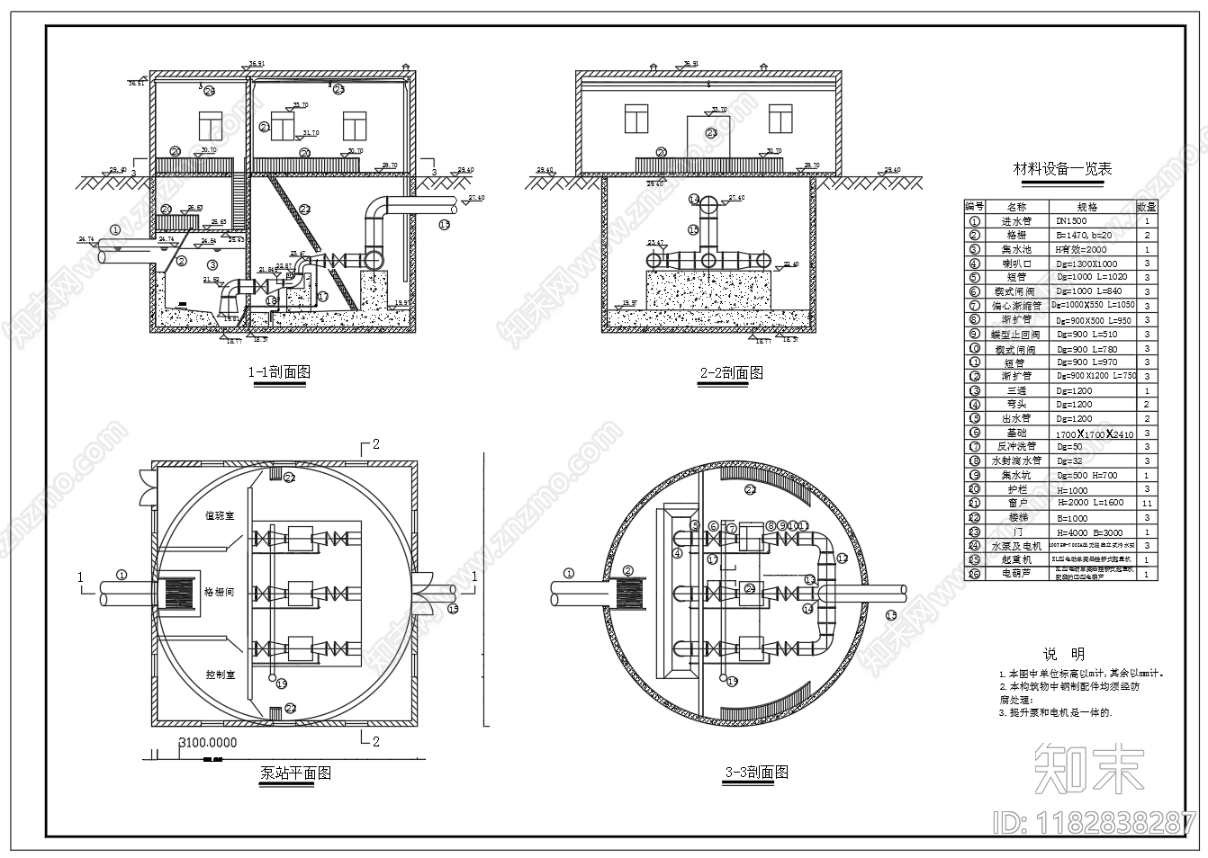
水处理 污水提升泵站 污水提升泵站平剖 施工图
水处理CAD下载
ID: 1182838287
复制
上传作者
小小鱼鱼
上传时间
2024-12-27
文件大小
0.14M
设计风格:
--
CAD版本:
CAD2004
包含文件:
CAD
授权
独家
立即下载
收藏
分享
举报
相关推荐
综合
机电工程
水处理
给排水图
暖通空调
电气图
电气工程节点
消防设施
机械设备
其他机电图纸
建筑给排水