CAD频道
CAD图库
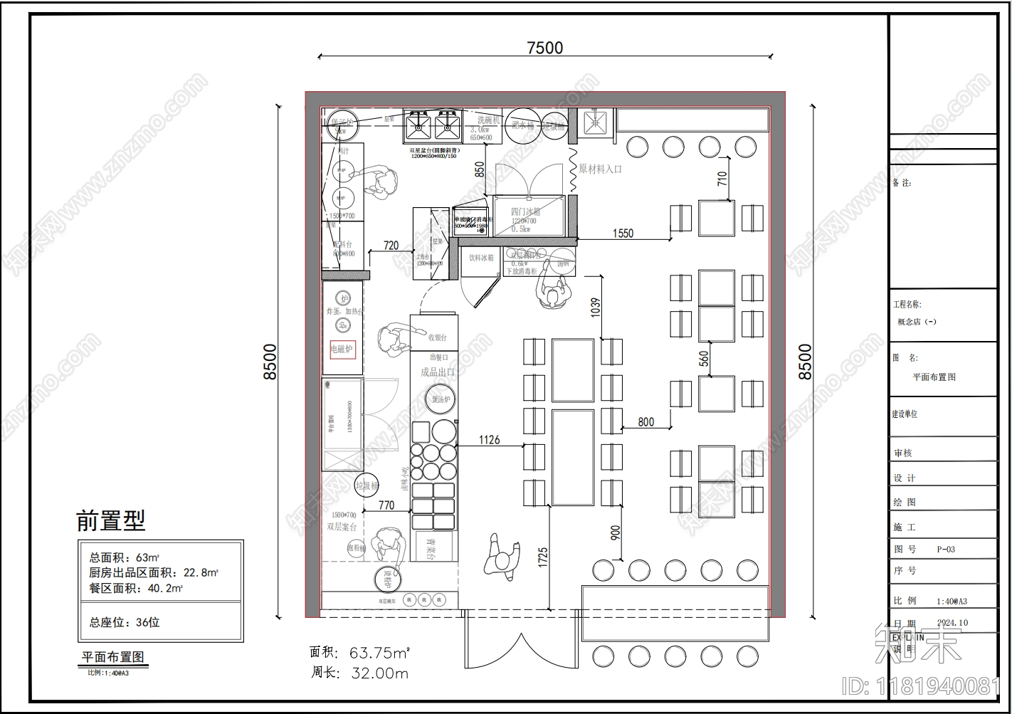
工装平面图 前置性 内退型 后置型 平面布局图 店面空间设计 施工图
1/
3
Previous
Next
工装平面图CAD下载
ID: 1181940081
复制
上传作者
愣头青铁头娃
上传时间
2024-12-18
文件大小
34.96M
设计风格:
--
CAD版本:
CAD2007
包含文件:
CAD
授权
普通
立即下载
收藏
分享
举报
相关推荐
综合
平面图
工装平面图
景观平面图
规划平面图
其他平面图
小区平面图