CAD频道
CAD图库
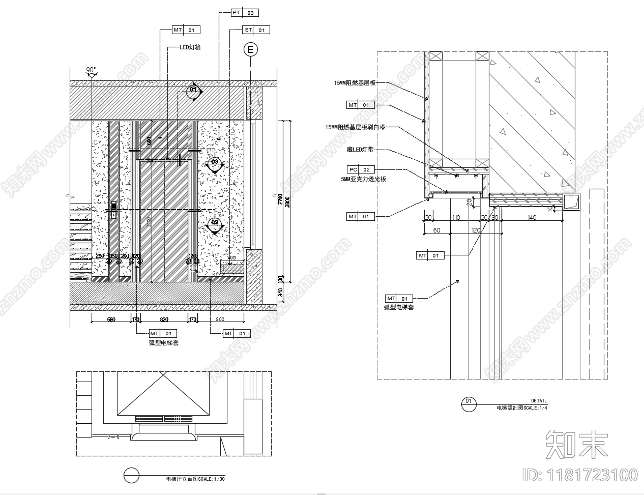
现代墙面节点 不锈钢电梯门详图 施工图 墙面节点
1/
2
Previous
Next
现代墙面节点CAD下载
ID: 1181723100
复制
上传作者
24545712141158
上传时间
2024-12-16
文件大小
0.22M
设计风格:
--
CAD版本:
--
包含文件:
CAD
授权
普通
立即下载
收藏
分享
举报
相关推荐
综合
墙面节点
轻钢龙骨隔墙
背景墙节点
壁龛节点
隔音墙节点