CAD频道
CAD图库
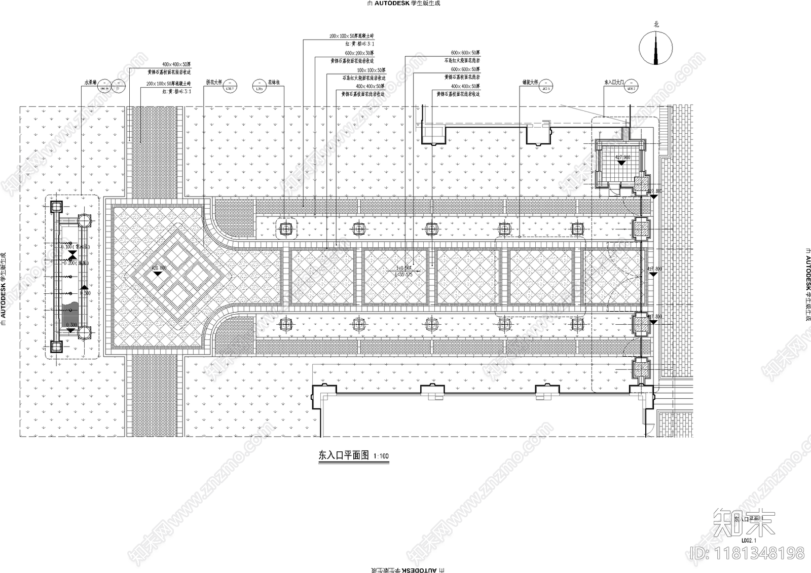
欧式入口 东小区大门 大详图 大门结构图 施工图
1/
5
Previous
Next
欧式入口CAD下载
ID: 1181348198
复制
上传作者
罢手54
上传时间
2024-12-11
文件大小
3.41M
设计风格:
--
CAD版本:
CAD2014
包含文件:
CAD
授权
独家
立即下载
收藏
分享
举报
相关推荐
综合
景观小品
入口
亭子
廊架
景墙
综合景观小品
雨棚
围墙
挡土墙
景观坐凳