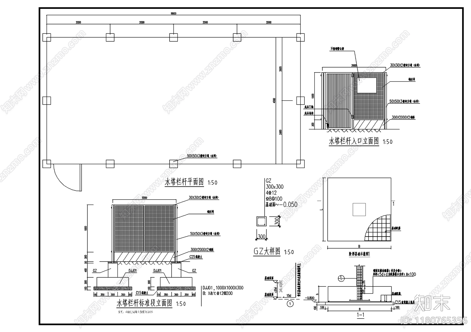
现代栏杆施工图下载【ID:1180765356】

现代栏杆CAD下载

ID: 1180765356
复制
上传作者
天选搬砖天选搬砖

上传时间2024-12-05

文件大小0.05M

设计风格:--

CAD版本:CAD2014

包含文件:CAD

授权独家

立即下载
收藏
分享
举报
相关推荐
综合
景观小品
栏杆
亭子
廊架
景墙
综合景观小品
雨棚
围墙
挡土墙
入口