CAD频道
CAD图库
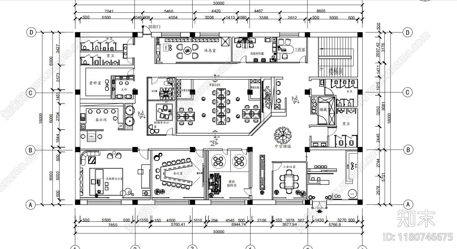
现代整体办公空间 两层办公空间平面 办公空间平面布局 施工图
1/
2
Previous
Next
现代整体办公空间CAD下载
ID: 1180746675
复制
上传作者
制图大师
上传时间
2024-12-05
文件大小
1.13M
设计风格:
--
CAD版本:
CAD2007
包含文件:
CAD
授权
独家
立即下载
收藏
分享
举报
相关推荐
综合
办公空间
整体办公空间
开放办公室
会议室
休息室
独立办公室
直播间
茶水间
接待室
工作室