CAD频道
CAD图库
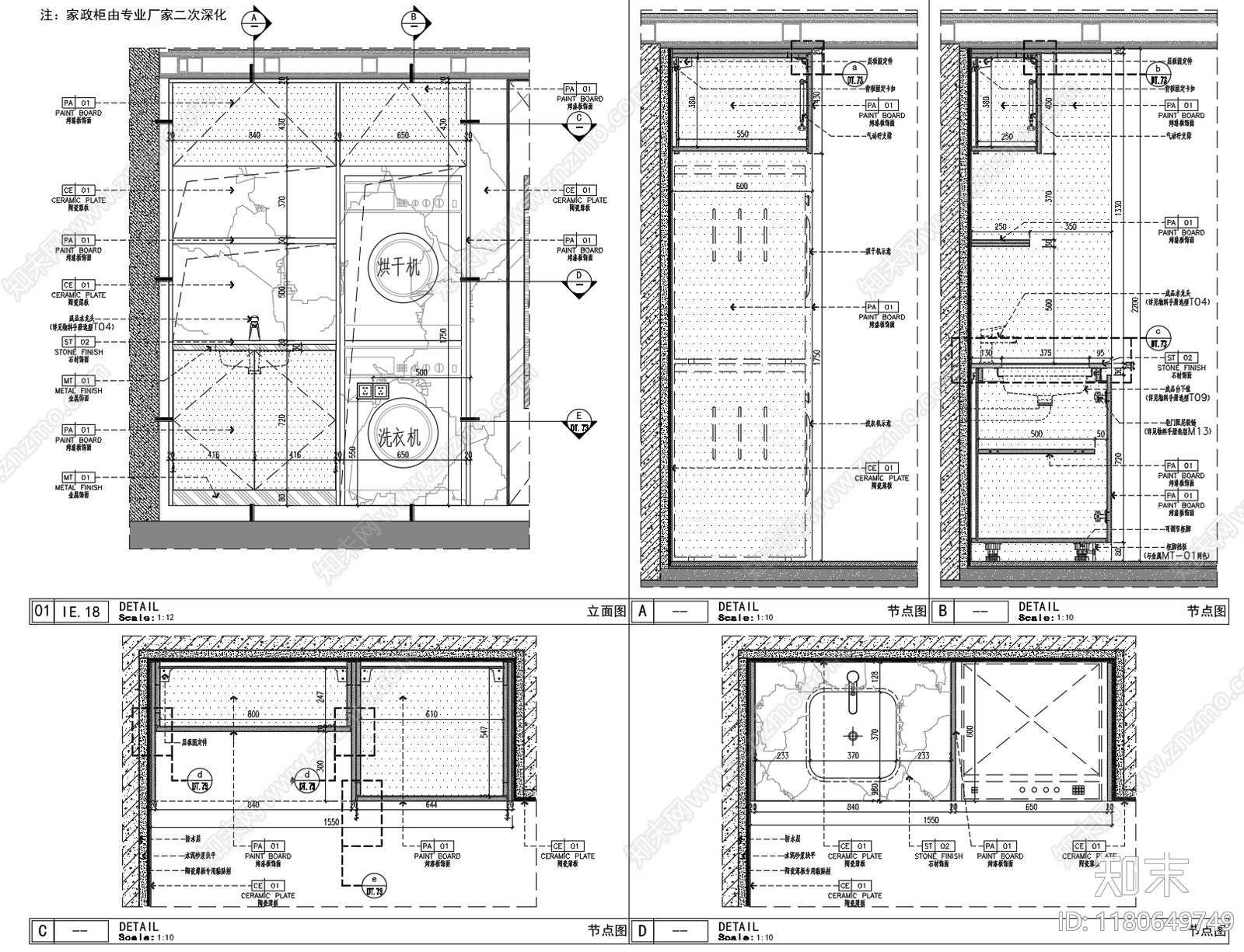
极简简约家具节点详图 阳台柜 家政柜节点 洗衣机柜 施工图 家具节点详图...
1/
2
Previous
Next
极简简约家具节点详图CAD下载
ID: 1180649749
复制
上传作者
HAHA
上传时间
2024-12-03
文件大小
0.73M
设计风格:
--
CAD版本:
CAD2004
包含文件:
CAD
授权
独家
立即下载
收藏
分享
举报
相关推荐
综合
家装局部空间
阳台
客厅
餐厅
厨房
卫生间
卧室
书房
衣帽间
客餐厅