CAD频道
CAD图库
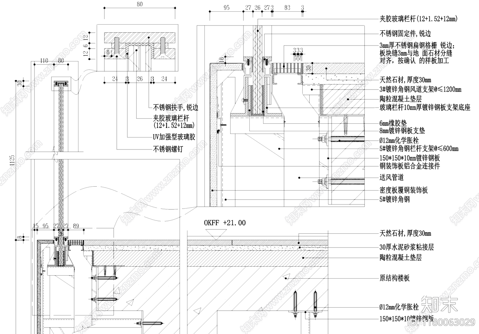
栏杆 玻璃 不锈钢扶手 吊顶钢架转换层 栏板 背栓圆形风口 施工图
1/
3
Previous
Next
栏杆CAD下载
ID: 1180063029
复制
上传作者
74426266987
上传时间
2024-11-27
文件大小
1.8M
设计风格:
--
CAD版本:
CAD2010
包含文件:
CAD
授权
普通
立即下载
收藏
分享
举报
相关推荐
综合
景观小品
栏杆
亭子
廊架
景墙
综合景观小品
雨棚
围墙
挡土墙
入口