CAD频道
CAD图库
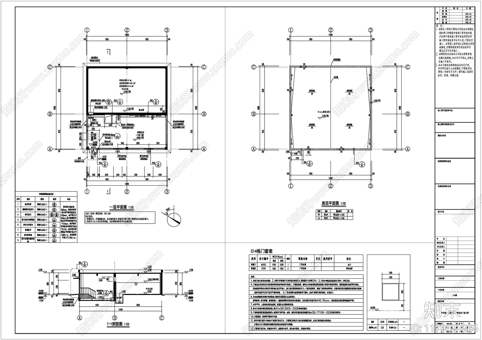
现代其他建筑 单层框架 灌溉泵站 建筑 结构 施工图
1/
6
Previous
Next
现代其他建筑CAD下载
ID: 1179421266
复制
上传作者
滴水藏海
上传时间
2024-11-20
文件大小
17.63M
设计风格:
--
CAD版本:
CAD2014
包含文件:
CAD
授权
普通
立即下载
收藏
分享
举报
相关推荐
综合
建筑
其他建筑
居住建筑
办公工业建筑
商业建筑
酒店民宿建筑
交通建筑
规划设计
古建
教育建筑