CAD频道
CAD图库
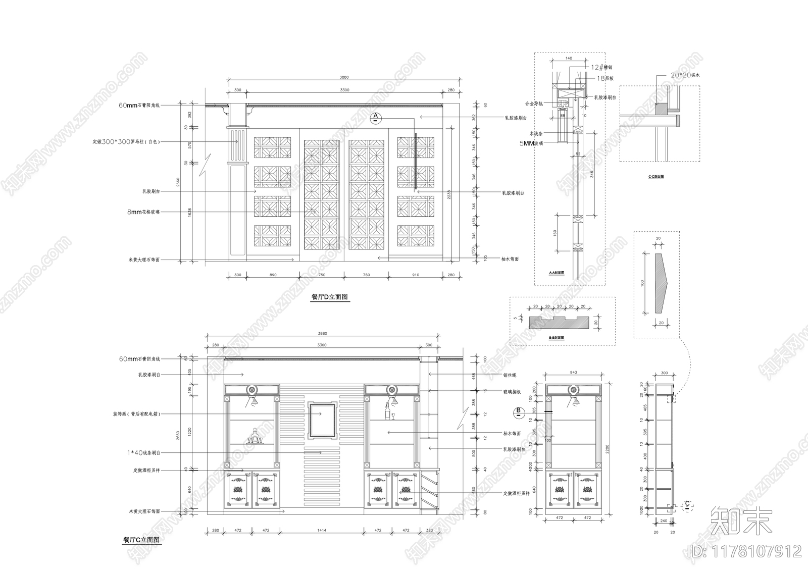
平层 欧式室内立面图 施工图 平层
1/
2
Previous
Next
平层CAD下载
ID: 1178107912
复制
上传作者
不熬夜是我的温柔
上传时间
2024-11-08
文件大小
3.6M
设计风格:
--
CAD版本:
CAD2004
包含文件:
CAD
授权
普通
立即下载
收藏
分享
举报
相关推荐
综合
平层
大平层
小户型平层
超大型平层