CAD频道
CAD图库
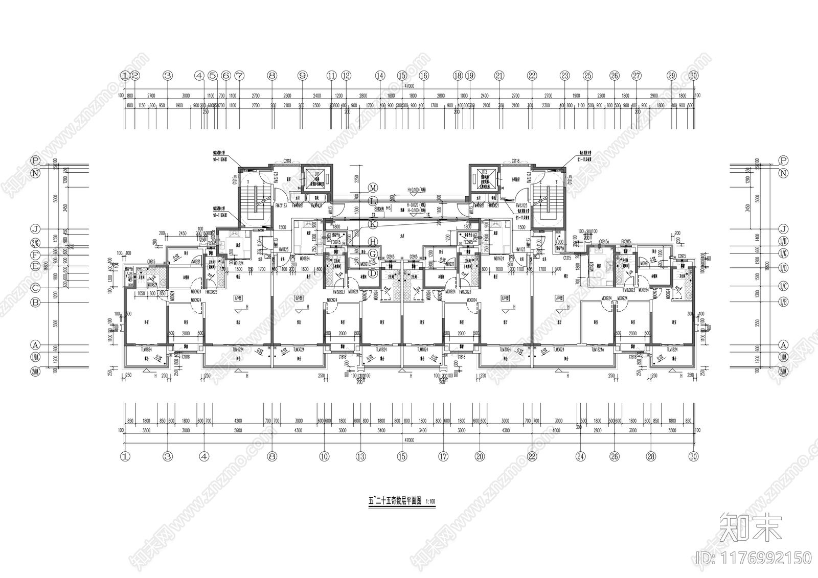
现代住宅楼建筑 中海地产 26层高层住宅 两梯四户 户型详图 说明详图大...
1/
7
Previous
Next
现代住宅楼建筑CAD下载
ID: 1176992150
复制
上传作者
MEDUSA
上传时间
2024-10-29
文件大小
8.93M
设计风格:
--
CAD版本:
CAD2004
包含文件:
CAD
授权
独家
立即下载
收藏
分享
举报
相关推荐
综合
户型优化
两梯四户
一梯两户
一梯三户
一梯四户