CAD频道
CAD图库
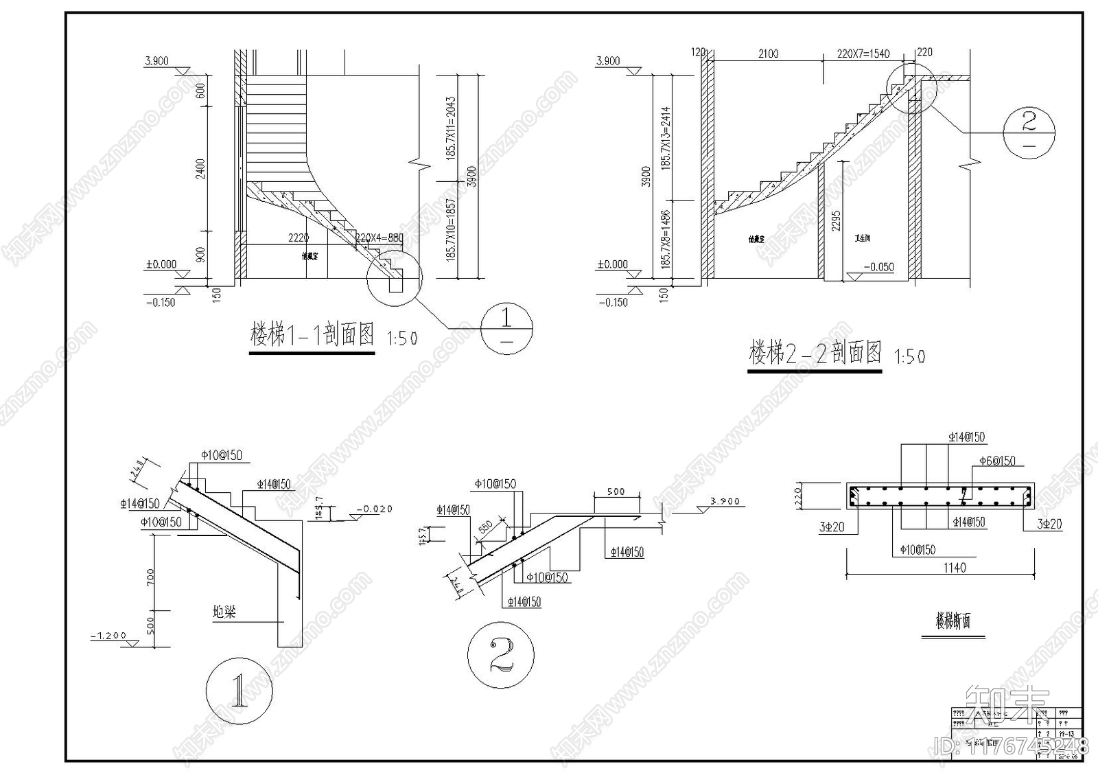
其他结构设计 别墅结构图 施工图
1/
7
Previous
Next
其他结构设计CAD下载
ID: 1176745248
复制
上传作者
gdxgrd
上传时间
2024-10-26
文件大小
0.35M
设计风格:
--
CAD版本:
天正CAD4.0
包含文件:
CAD
授权
普通
立即下载
收藏
分享
举报
相关推荐
综合
结构节点图
其他结构设计
桁架
钢结构节点
混凝土节点
幕墙结构节点
转换层